EasyManua.ls Logo

Triconex Trident - Page 24

Default Icon
274 pages
Print Icon
To Next Page IconTo Next Page
To Next Page IconTo Next Page
To Previous Page IconTo Previous Page
To Previous Page IconTo Previous Page
Loading...
8 Controller Architecture
Trident Planning and Installation Guide
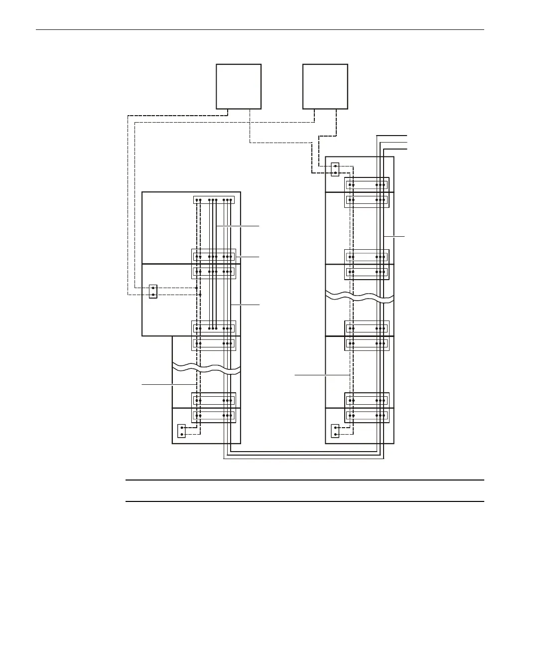
Note Each column of modules must have a separate logic power connection.
Field signal distribution is local to each IO baseplate. Each IO module transfers
signals to or from the field through its associated baseplate assembly. The two IO
module slots on the baseplate tie together as one logical slot. The right or left
position holds the active IO module and the other position holds the hot-spare IO
module. Each field connection on the baseplate extends to both active and hot-
IO Bus and Power
Distribution
Diagram
~~~
(14 I/O
Modules
Maximum)
(8 I/O
Modules
Maximum
Per Column
)
Power
Supply
#1
Power
Supply
#2
Interconnect
Assembly
Communication
Bus
Power
Bus
Power
Bus
Channel A
Channel B
Channel C
I/O Bus
EM
EMEM
I/O
CM
MP
I/O
I/O
I/O
I/O Bus
I/O Bus

Table of Contents