EasyManua.ls Logo

Triconex Trident - Page 250

Default Icon
274 pages
Print Icon
To Next Page IconTo Next Page
To Next Page IconTo Next Page
To Previous Page IconTo Previous Page
To Previous Page IconTo Previous Page
Loading...
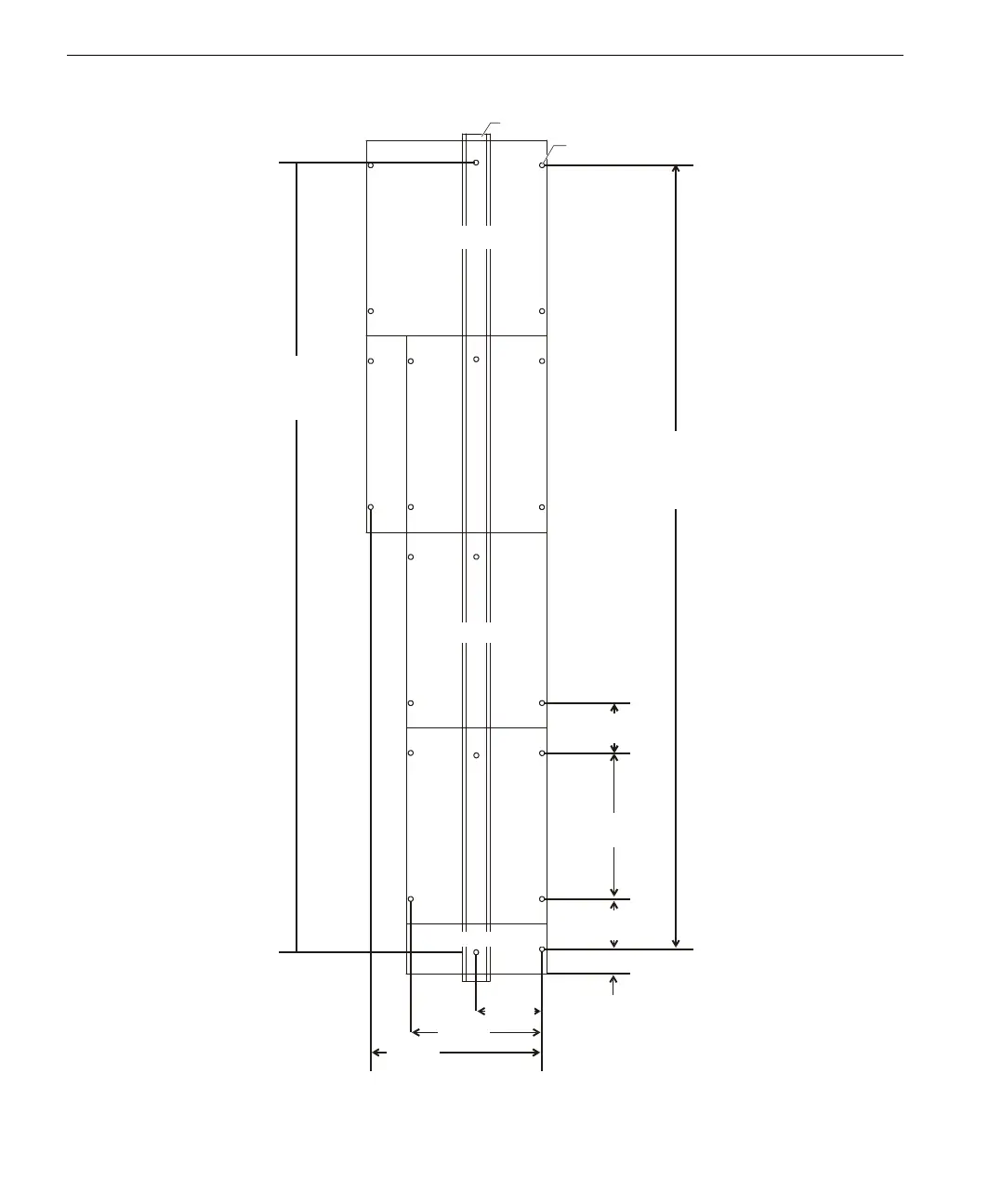
234
Trident Planning and Installation Guide
1.25 in.
31.8 mm
Ref
3.29 in.
83.6 mm
6.56 in.
166.6 mm
8.56 in.
217.4 mm
DIN Rail
Tap, #10-32
39.30 in.
995.7 mm
Ref for
5 Baseplates
As Illustrated
*
7.30 in.
185.4 mm
*
2.50 in.
63.5 mm
*
2.50 in.
63.5 mm
*
*
Typical, non-accumulating
Number Equal Spaces
@ 9.84 in. = 39.50 in.
252.6 mm = 1002.2 mm
Ref
Extender Module Baseplate
I/O Module Baseplate
MP or CM Baseplate

Table of Contents