EasyManua.ls Logo

Triconex Trident - Page 74

Default Icon
274 pages
Print Icon
To Next Page IconTo Next Page
To Next Page IconTo Next Page
To Previous Page IconTo Previous Page
To Previous Page IconTo Previous Page
Loading...
58 Input/Output Modules
Trident Planning and Installation Guide
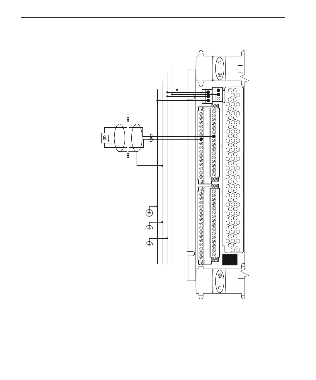
Model 2351 Analog Input Baseplate Field Connections
1
2
3
4
5
6
7
8
9
10
11
12
13
14
15
16
1
2
3
4
5
6
7
8
9
10
11
12
13
14
15
16
17
18
19
20
21
22
23
24
25
26
27
28
29
30
31
32
17
18
19
20
21
22
23
24
25
26
27
28
29
30
31
32
~
~~~~
~~~~
~~~~
S
F
6
Typical Point
(1 of 32 Points Shown)
4-20 mA
Transmitter
~
+24 V #1
~
24 V Return
~
Shield
~
Safety
+24 V #2
~
+
+

Table of Contents