EasyManua.ls Logo

Universal APX 525 - Page 107

Default Icon
243 pages
Print Icon
To Next Page IconTo Next Page
To Next Page IconTo Next Page
To Previous Page IconTo Previous Page
To Previous Page IconTo Previous Page
Loading...
APX 525/625 Generator Revision C Installation
©
2005 Del Medical Imaging Corporation
7/5/2005 Page 98
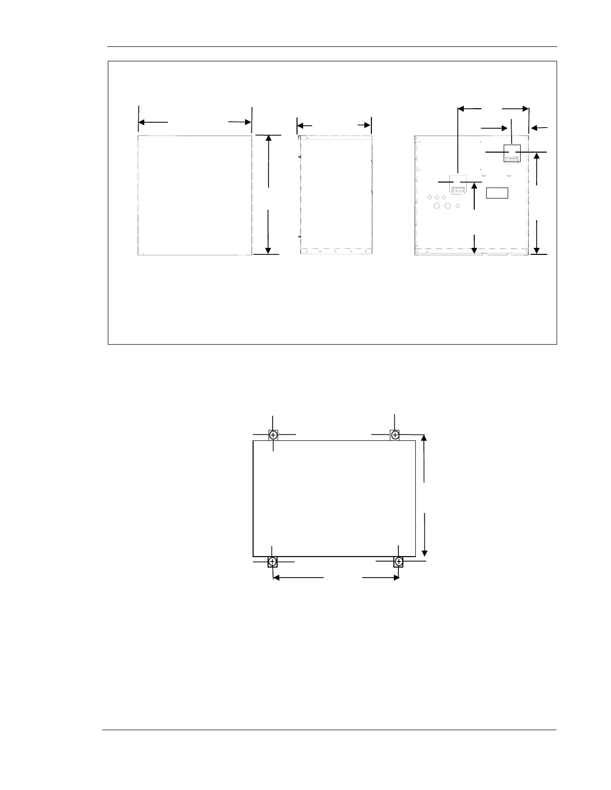
Figure 42 – Cable Access Holes
Figure 43 – Floor Attachment Pattern
Rear View
Side View
15.5”
394mm
4.4”
112mm
23.5”
597mm
16.5”
419mm
Front View
28.45”
723mm
27.2” 691mm
17.61”
447mm
19.5”
495mm
25.11”
638mm

Table of Contents