EasyManua.ls Logo

Valtra 6100 - DPS Circuit Card; INPUT Signals; OUTPUT Signals; Fault Tracing of Input Signals

Valtra 6100
1361 pages
Print Icon
To Next Page IconTo Next Page
To Next Page IconTo Next Page
To Previous Page IconTo Previous Page
To Previous Page IconTo Previous Page
Loading...
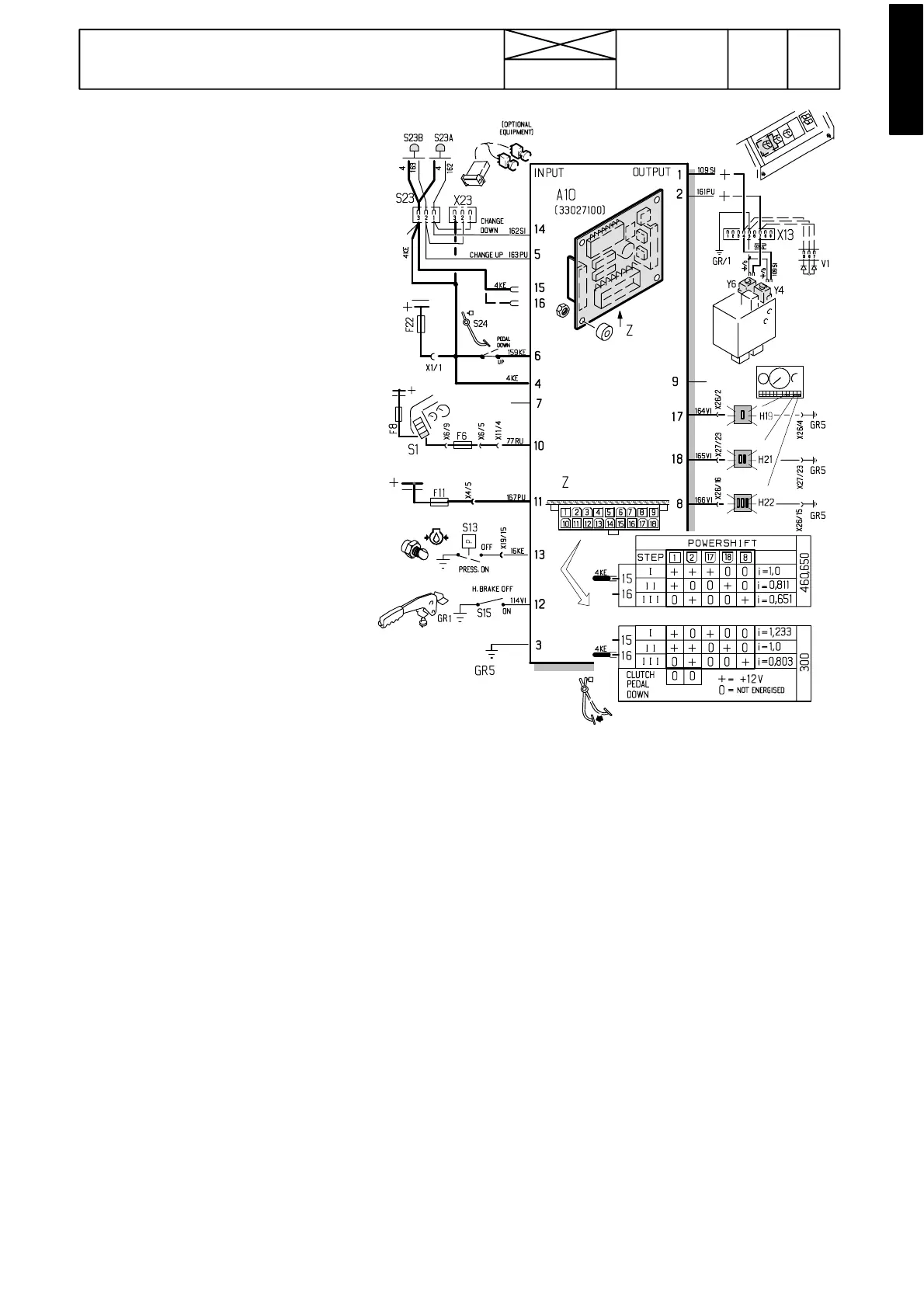
Picture 2. Input and output signals to/from Delta Powershift
circuit card A10
+=energised, 0=unenergised
Z=18 ---pin connector seen from front
Pins 7 and 9 not in use
X23= Connector for extra buttons
GR1=Ground point in the rear part of the lever console
GR5=Ground point on the cab front wall
Note! Position of various component and connectors and wiring
diagram are shown under code 310 alla.
DPS circuit card
INPUT signals
Pin 3: Permanent earthing
Pin 4: 12 V via starter switch and fuse F22.
Pin 5: 12 V, when the foremost push button
is pressed. Otherwise 0 V.
Pin 6: When the clutch pedal is in the upper
position, this pin has 12 V voltage.
When the pedal is depressed, the vol-
tage becomes 0.
Pin 10: 12V, when headlights are on, other-
wise 0 V.
Pin 11: permanent current via fuse F11 (12 V)
Pin 12: When the hand brake is applied, this
pin gets earth.
Pin 13: Earthed, when engine is stopped
Pin 14: 12 V, when the rearmost push button
is depressed, otherwise 0 V.
Pins 15 and 16: If the DPS ratio is direct---overd-
rive ---overdrive, the wire is con-
nected to pin 15. If the ratio is
reduction ---direct---overdrive,
thewireisconnectedtopin16
(wire is energised with 12 V).
OUTPUT signals
Pins 1 and 2: Current to DPS solenoids (12 V). When the
clutch pedal is depressed, both pins are deenergised and
also the solenoid valves Y4 and Y6. When pin 1 is energised
(12 V), solenoid valve Y4 is energised. When pin 2 is live (12
V) solenoid valve Y6 is energised.
Pins 17, 18 and 8: Signals to pilot lights (12 V).
Fault tracing of input signals
The input signals can be measured from the detached con-
nector of the circuit card, when the current is switched on.
When malfunctions occur, check the fuses, supply voltages
and earthing.
If one of input signals is uncorrect, check wiring and connec-
tors of this function and the sensor/switch in question.
Testing the circuit card buzzer
--- Ground pin 3 and feed voltage of 12 V to pin 11.
--- Ground pin 13 and feed voltage of 12 V to pin 4, at which
time the buzzer must give continuous signal. Disconnect
pin 4, after witch the buzzer should alarm about 2 min.
--- Remove ground from pin 13 and ground pin 12 and feed
a voltage of 12 V to pin 4, after which the buzzer should
give discontinuous sound signal.
--- Feed pin 10 with 12 V and disconnect pin 4, after which
the buzzer must give discontinuous alarm signal.
Fault tracing of output signals
Signals from pins 1 and 2 to solenoid valves can be verified by
engaging different ratios and by testing with a metal tool, whether
the solenoid valve in question becomes magnetic (see +/0 table)
and by measuring voltage in the solenoid valve connectors (12 V).
If there is no voltage at the solenoid valves, check connector X13
and wiring. If output signal from the circuit card A10 has no voltage,
although the input signals are OK, the whole circuit card should be
changed. The output signals can be measured with a multimeter
from circuit card connector while current is switced on and connec-
tor Z is in place. All outputs are 12 V. When measuring on the lower
pins, do not short circuit the pins. It is recommended, that the mea-
surements are carried out on the wire side of the connector
From pins 17, 18 and 8 signals are sent to the pilot lights. The pic-
ture above shows which pins are energised with different ratios.
The output signals (12 V) to the pilot lights can be measured on the
card with a multimeter, when current is switched on and connector
Z is in place. When the push buttons are pressed while the current
is switched on, the pilot lights must come on and go out in correct
order.
Position of connectors
X1: In fuse box
X4: In fuse box
X6: In fuse box
X11: Connector in the cab roof
X13: Solenoid valve connector under the hand brake console
X19: Plug on the cab front wall on the RH side.
X26: White connector at the rear side of the instrument panel
X27: Blue connector at the rear side of the instrument
S23: Push button connector at the lower end of gear levers
X23: Extra push button connectors at the lower end of gear levers
251
Model Code Page
31. Autocontrol 2.1
6000--8750 312 3
15. 4. 1995
1. 4. 1997

Table of Contents

Related product manuals