EasyManua.ls Logo

Velodyne VLP-32C - D.2 Interface Box Schematic

Velodyne VLP-32C
136 pages
Print Icon
To Next Page IconTo Next Page
To Next Page IconTo Next Page
To Previous Page IconTo Previous Page
To Previous Page IconTo Previous Page
Loading...
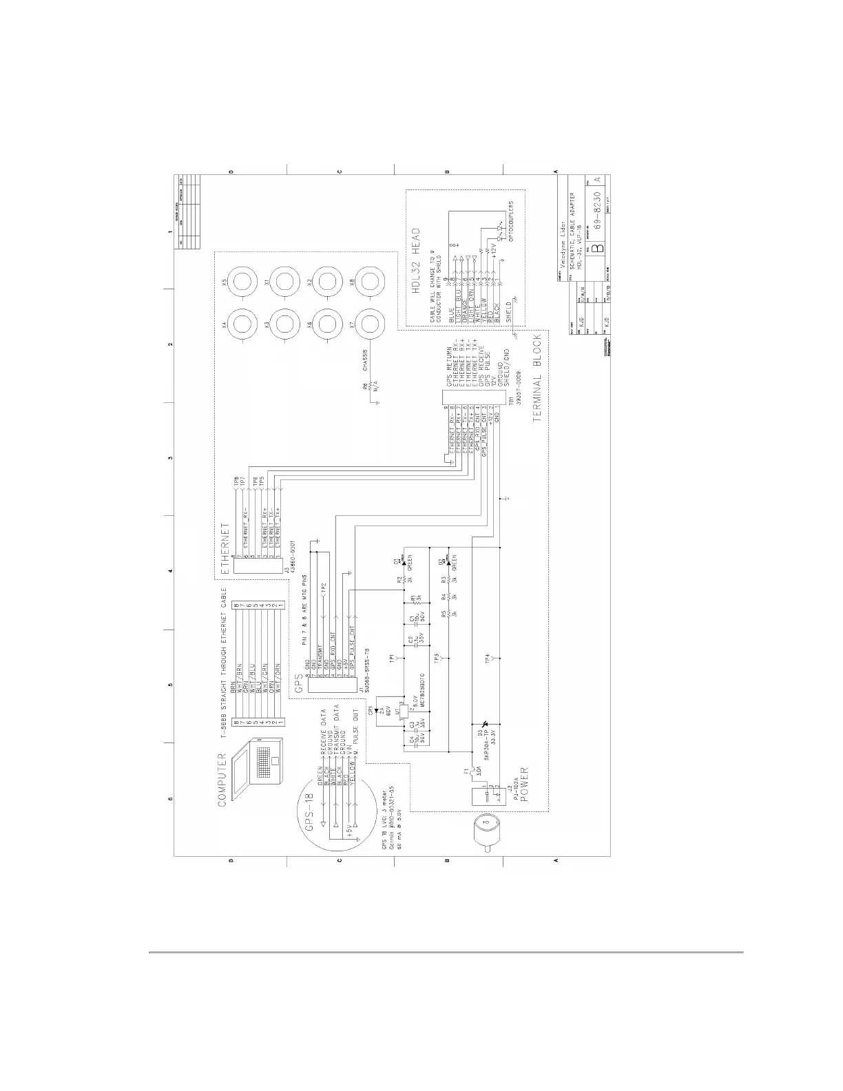
D.2 Interface Box Schematic
Figure D-2 Interface Box Schematic 69-8230A
Appendix D Wiring Diagrams 107

Table of Contents

Related product manuals