EasyManua.ls Logo

Wacker Neuson G 240 - DC Schematic: G 240 John Deere Tier 3

Wacker Neuson G 240
254 pages
Print Icon
To Next Page IconTo Next Page
To Next Page IconTo Next Page
To Previous Page IconTo Previous Page
To Previous Page IconTo Previous Page
Loading...
Schematics, Machines with Basler Controller G 230 / G 240
222
wc_tx003749gb_FM10.fm
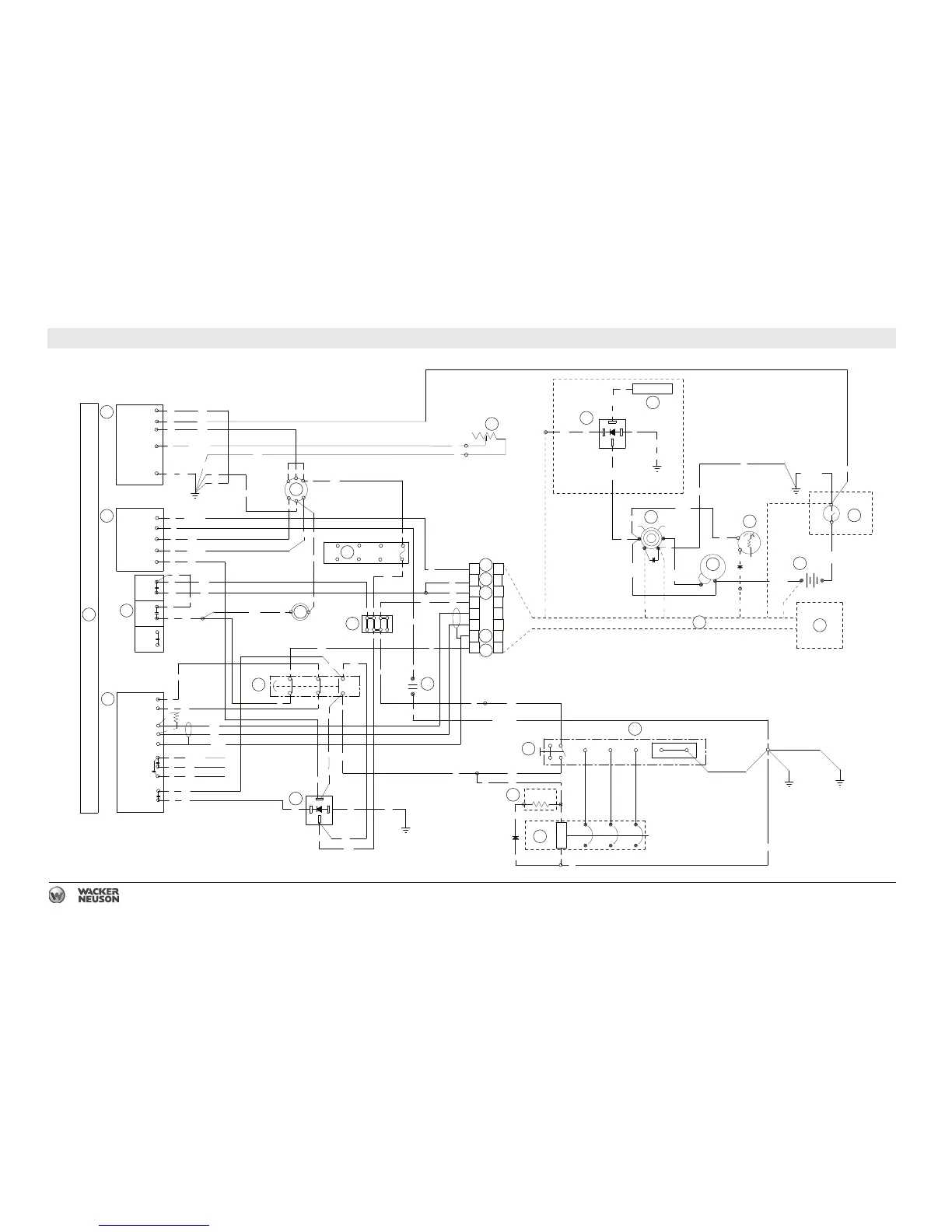
26.3 DC Schematic: G 240 John Deere Tier 3
wc_gr011989
1212
BLKBLK
1313
5959
RED RED
10AWG10AWG
1212
RELAYRELAY
6565
1111
GRYGRY
BLKBLK
1414
1111
1414
4747
4646
WHTWHT
RED RED
2/0 AWG2/0 AWG
5050
L0L0
BOND BARBOND BAR
GRDGRD
L3L3L2L2
GROUND TOGROUND TO
ENGINE BLOCKENGINE BLOCK
REDRED
4 AWG4 AWG
L1L1
ORGORG
ORGORG
4545
MECHANICAL LUGSMECHANICAL LUGS
YELYEL
4747
WHTWHT
YELYEL
BLKBLK
6262
2020
9595
1818
5151
2
4949
5353
5252
REDRED
5353
BAT+ 3BAT+ 3
5959
GROUND 1GROUND 1
6060
REMOTE START 27REMOTE START 27
6161
6262
SENDER COM 11SENDER COM 11
FUEL LEVEL 9FUEL LEVEL 9
1818
6363
6464
7575
7373
ORGORG
6060
4545
4444
GRNGRN
NONO
ORGORG
2
4444
YELYEL
ORNORN
3434 6161
4646
9393
6464
REDRED
NCNC
REDRED
NCNC
VIOVIO
REDRED
REDRED
REDRED
10AWG10AWG
GRN/YELGRN/YEL
BAT - 2BAT - 2
8080
8383
8484
8585
RUN MODE 29RUN MODE 29
REMOTE START 28REMOTE START 28
MODE MODE
BREAKER 30BREAKER 30
TRIPPEDTRIPPED
TRIP BREAKER 56TRIP BREAKER 56
E-STOP 47E-STOP 47
REMOTE ANNUNCIATORREMOTE ANNUNCIATOR
COMMON 51 COMMON 51
PREALARM 53PREALARM 53
E-STOP 46E-STOP 46
ALARM 52ALARM 52
BAT+ 55BAT+ 55
4949
STARTSTART
FUELFUEL
PREPRE
HEATHEAT
9393
BLKBLK
REDRED
WHT/VIOWHT/VIO
YELYEL
VIOVIO
GRYGRY
TAN/WHTTAN/WHT
TANTAN
8181
8282
8282
8383
8484
9494
9494
9696
9696
8686
7474
9595
9090
9191
9292
9292
9090
VIOVIO
BLKBLK
BLKBLK
BLKBLK
BLKBLK
BLKBLK
GRNGRN
GRN/YELGRN/YEL
BLUBLU
REDRED
REDRED
BLUBLU
GRYGRY
TANTAN
7.5A7.5A
FUSEFUSE
RED RED
10AWG10AWG
5050
RED RED
10AWG10AWG
B+B+
CAN L 48CAN L 48
CAN H 49CAN H 49
SHIELD 50SHIELD 50
A
J
D
B
U
V
F
G
A
J
D
B
U
V
F
G
8080
1515
6363
5151
5656
3434
REDRED
GRNGRN
YELYEL
SHIELDSHIELD
1313
BLKBLK
2/0 AWG2/0 AWG
BLKBLK
2/0 AWG2/0 AWG
ORGORG
ORGORG
BLKBLK
REDRED
REDRED
BLKBLK
REDRED
WHTWHT
YELYEL
BLKBLK
9797
8686
8585
9797
BLUBLU
REDRED
9898
2020
9898
REDRED
9999
BLKBLK
120 OHM120 OHM
6767
6868
5656
WHT/BLUWHT/BLU
START DELAY 23START DELAY 23
(PRE-HEAT)(PRE-HEAT)
REDRED
NOT NOT
USED ONUSED ON
-
8
8
3
8
SHUSHU
8
8
3
8
1
2
6
3
5
4
7
8
10
12
14
13
15
16
9
11
17
20
23
24
25
21
22
19
26
27
28
29
30
31
32

Table of Contents

Other manuals for Wacker Neuson G 240