EasyManua.ls Logo

Wacker Neuson G 240 - DC Schematic: G 240 John Deere Tier 3

Wacker Neuson G 240
254 pages
Print Icon
To Next Page IconTo Next Page
To Next Page IconTo Next Page
To Previous Page IconTo Previous Page
To Previous Page IconTo Previous Page
Loading...
Schematics, Machines with Deep Sea Controller G 230 / G 240
238
wc_tx003750gb_FM10.fm
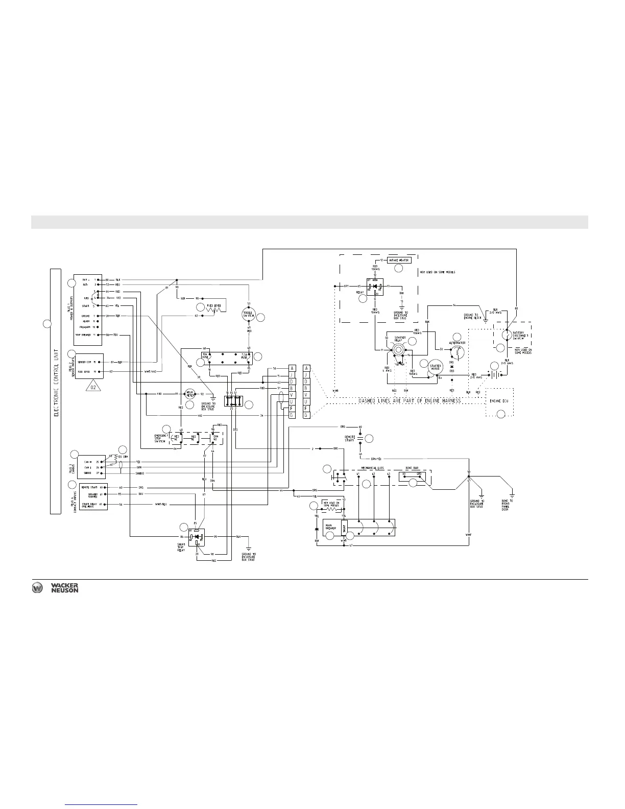
27.3 DC Schematic: G 240 John Deere Tier 3
J
wc_gr011793
1
2
4
5
3
12
7
8 9
10
13
29
25
11
14
15
16
17
18
28
24
19
23
27
26
20
21
22
6

Table of Contents

Other manuals for Wacker Neuson G 240