EasyManua.ls Logo

Wacker Neuson G 240 - Cummins Engine Relays and Fuses

Wacker Neuson G 240
254 pages
Print Icon
To Next Page IconTo Next Page
To Next Page IconTo Next Page
To Previous Page IconTo Previous Page
To Previous Page IconTo Previous Page
Loading...
Schematics, Machines with Basler Controller G 230 / G 240
234
wc_tx003749gb_FM10.fm
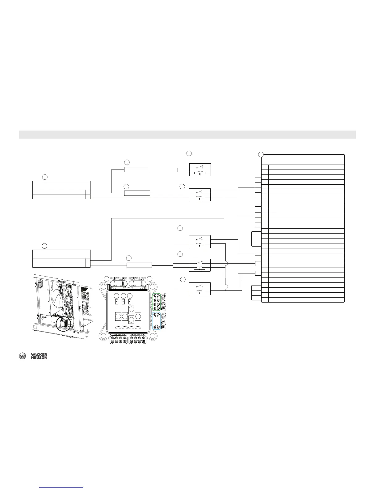
26.15 Cummins Engine Relays and Fuses
CONNECTOR 6
+24V BATTERY POSITIVE 6A
KEYSWITCH 6C
CONNECTORS 1, 2, 3, AND 4
OUTPUT PINS
1C CUMMINS J26 SUPPLY MODULE CONNECTOR - PIN 5
2C
CUMMINS J2 ECU CONNECTOR - PIN 7
4B
CUMMINS J6 DEF TANK SENSORS - PIN 4
4C
CUMMINS J17 DOC TEMP SENSORS - PIN 4
4D
CUMMINS J10 SCR TEMP SENSORS - PIN 4
4F
CUMMINS J7A DOC NOx SENSOR - PIN 1
4G
CUMMINS J7B SCR NOx SENSOR - PIN 1
4A
CUMMINS J6 DEF TANK SENSORS - PIN 3
4E
CUMMINS J17 DOC TEMP SENSORS - PIN 1
4H
CUMMINS J10 SCR TEMP SENSORS - PIN 1
3A
CUMMINS J7A DOC NOx SENSOR - PIN 4
3H
CUMMINS J7B SCR NOx SENSOR - PIN 4
1D
CUMMINS J26 SUPPLY MODULE CONNECTOR - PIN 6
2H
CUMMINS J2 ECU CONNECTOR - PIN 53
2A
CUMMINS J2 ECU CONNECTOR - PIN 77
3D
CUMMINS J31 DEF INJECTOR - PIN 1
3E
CUMMINS J31 DEF INJECTOR - PIN 2
2B
CUMMINS J2 ECU CONNECTOR - PIN 38
1E
CUMMINS J28 DEF PRESSURE LINE HEATER - PIN 1
2D CUMMINS J2 ECU CONNECTOR - PIN 39
1B CUMMINS J29 DEF BACKFLOW LINE HEATER - PIN 1
2F CUMMINS J2 ECU CONNECTOR - PIN 40
1F CUMMINS J30 DEF SUPPLY LINE HEATER - PIN 1
2G CUMMINS J2 ECU CONNECTOR - PIN 3
1A CUMMINS J28 DEF PRESSURE LINE HEATER - PIN 2
1G CUMMINS J29 DEF BACKFLOW LINE HEATER - PIN 2
1H CUMMINS J30 DEF SUPPLY LINE HEATER - PIN 2
2E CUMMINS J2 ECU CONNECTOR - PINS 84 & 85
CONNECTOR 5
-24V BATTERY NEGATIVE 5C
+24V BATTERY POSITIVE 5A
FUSE 1 - 15A
FUSE 2 - 10A
FUSE 3 - 15A
30
86
87
85
AFTERTREATEMENT
POWER RELAY
30
86
87
85
DEF PRESSURE LINE
HEATER RELAY
30
86
87
85
DEF BACKFLOW LINE
HEATER RELAY
30
86
87
85
DEF SUPPLY LINE
HEATER RELAY
30
86
87
85
DEF SUPPLY
MODULE RELAY
wc_gr011996
1
3
2
4
6
7
10
11
9
5
6 5
7
8
1 23
4910
8

Table of Contents

Other manuals for Wacker Neuson G 240