EasyManua.ls Logo

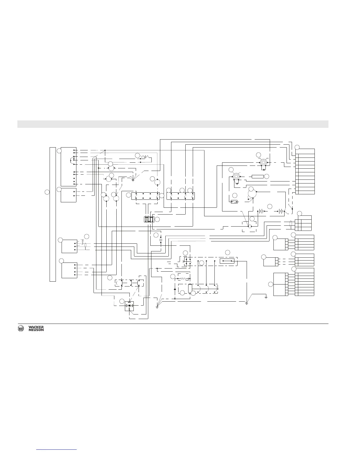
Wacker Neuson G 240 - DC Electrical Schematic Section A: G 230 Cummins T4 f

Wacker Neuson G 240
254 pages
Print Icon
To Next Page IconTo Next Page
To Next Page IconTo Next Page
To Previous Page IconTo Previous Page
To Previous Page IconTo Previous Page
Loading...
Schematics, Machines with Deep Sea Controller G 230 / G 240
240
wc_tx003750gb_FM10.fm
27.5 DC Schematic: G 230 Cummins T4i
5200006818_02
CUMMINS J1939
CONNECTOR
A J1939+
B J1939-
CSHIELD
16 PIN CUMMINS
OEM CONNECTOR
A
+24V ECM POWER
F
+24V SERVICE LINK
H
KEYSWITCH
E
STARTER SOLENOID
B
THROTTLE INPUT
M
FAN SPEED SIG.
P
FAN SPEED RETURN
S
AIR HTR RETURN
R
AIR HEATER SIG.
J
-24V ECM POWER
K
DATA LINK RETURN
CUMMINS CONNECTOR
'C7'
1 SENSOR SUPPLY
2 SIGNAL
3 SENSOR RETURN
21 PIN CUMMINS
AFTERTREATMENT
CONNECTOR
3
OEM SENSOR RTN
4
DPF DELTA P
5
DPF OUT PRESSURE
2
OEM SENSOR SUPPLY
7
DOC OUTLET TEMP
1
TEMP RETURN
8
DOC INLET TEMP
6
DPF OUTLET TEMP
CUMMINS CONNECTOR
'C12'
1 PRESSURE
2 SENSOR SUPPLY
3 TEMPERATURE
4 SENSOR RETURN
AIR CLEANER
TBAP SENSOR
1
2
3
4
COOLANT
LEVEL
SENSOR
A
B
C
DPF
PRESSURE
SENSOR
CONNECTOR
1
2
3
4
DPF
TEMPERATURE
SENSOR
CONNECTOR
1
2
3
4
A
B
C
INTAKE HEATER
48
10A
FUSE
18
101
102
STARTER
RELAY
47
46
WHT
BOND TO
FRONT
PANEL
DOOR
GROUND TO
ENCLOSURE
BOX, LARGE
STUD (1/2")
RED
2/0 AWG
L0
BOND BAR
GRD
L3L2
RED
12 AWG
L1
ORG
ORG
45
MECHANICAL LUGS
YEL
WHT
YEL
BLK
FUEL LEVEL
62
87
95
18
50
53
RED
53
BAT+ 2
60
REMOTE START 60
PLUG 1
POWER & OUTPUTS
62
SENDER COM 15
FUEL LEVEL 19
64
63
34
PLUG 3
CANBUS
ELECTRONIC CONTROL UNIT
ORG
60
45
GRN
NO
ORG
50
44
YEL
ORG
48
46
64
RED
NC
RED
NC
EMERGENCY
STOP
SWITCH
RED
RED
BAT - 1
80
85
BREAKER 61
TRIPPED
PLUG 2
SENSOR INPUTS
TRIP BREAKER 11
PREALARM 10
PLUG 6
CONTACT INPUTS
ALARM 9
49
GROUND TO
ENCLOSURE
BOX SMALL
STUD (M8)
START
FUEL
HOUR
METER
RED
WHT/VIO
YEL
VIO
81
91
86
95
90
92
81
BLK
BLK
BLK
BLU
7.5A
FUSE
B+
CAN L 26
CAN H 25
SCR 27
63
34
GRN
YEL
SHIELD
BLK
2/0 AWG
YEL BLK
86
97
BLU
RED
98
87
98
RED
SHUNT
TRIP
RELAY
99
BLK
120 OHM
67
68
IDLE 64
GROUND TO
ENCLOSURE
BOX SMALL
STUD (M8)
101
INTAKE
HEATER
RELAY
BLK
4 AWG
YEL
BLK
RED
2/0 AWG
20A
FUSE
5A
FUSE
1A
FUSE
B-
150A FUSE
BLACK
4 AWG
RED
12 AWG
BLK
103
BLK
103
105
106
102
110
105
110
106
107
104
104
BLK
12 AWG
BLK
YEL
BLK
4 AWG
RED
RED
RED
107
108
108
RED
12 AWG
109
109
RED
12 AWG
RED
12 AWG
VIO
112
BLK
111
111
VIO
112
GRN
YEL
SHIELD
113
RED
10 AWG
89 89GRN/YEL
BLK PAIR
2 AWG
BLU
BLU/WHT
80
BLK
10 AWG
63
YEL
99
VIO
ORG
44
44
78
79
GRN/YEL
29
27
28 BLK
RED
BLU
REGEN LIGHT 8
119
ORG
REGENERATION 65
115
WHT
117
WHT
116
120
BLK
119
118
117
TOGGLE
SWITCH
LIGHT
113
SWITCH
DISCONNECT
BATTERY
MODELS
ON SOME
NOT USED
BLK
10 AWG
3
5
4
TOGGLE
SWITCH
85
BLU
BLU
44
BLK
BLK
118
90
VIO
VIO
RED
TOGGLE
SWITCH
115
WHT/VIO
GRN
YEL
SHIELD
VIO
BLK
GROUND 7
59
BLK
59
92
116
-+
SHUNT
MAIN
BREAKER
87
85
30
86
-+
SEE AC SCHEMATIC
FOR LUG DOOR
SWITCH N.C. WIRING
NOT USED ON
SOME MODELS
REMOTE
START
STARTER
MOTOR
1
2
3
4
5
6
7
8
9
10
11
12
13
14
16
17
18
19
20
21
22
23
24
25
26
27
28
29
30
31
32
33
34
35
36
37
38
39
40
41
42
15

Table of Contents

Other manuals for Wacker Neuson G 240