EasyManua.ls Logo

Wacker Neuson G 240 - Schematics, Machines with Deep Sea Controller; AC Schematic: G 230; G 240

Wacker Neuson G 240
254 pages
Print Icon
To Next Page IconTo Next Page
To Next Page IconTo Next Page
To Previous Page IconTo Previous Page
To Previous Page IconTo Previous Page
Loading...
Schematics, Machines with Deep Sea Controller G 230 / G 240
236
wc_tx003750gb_FM10.fm
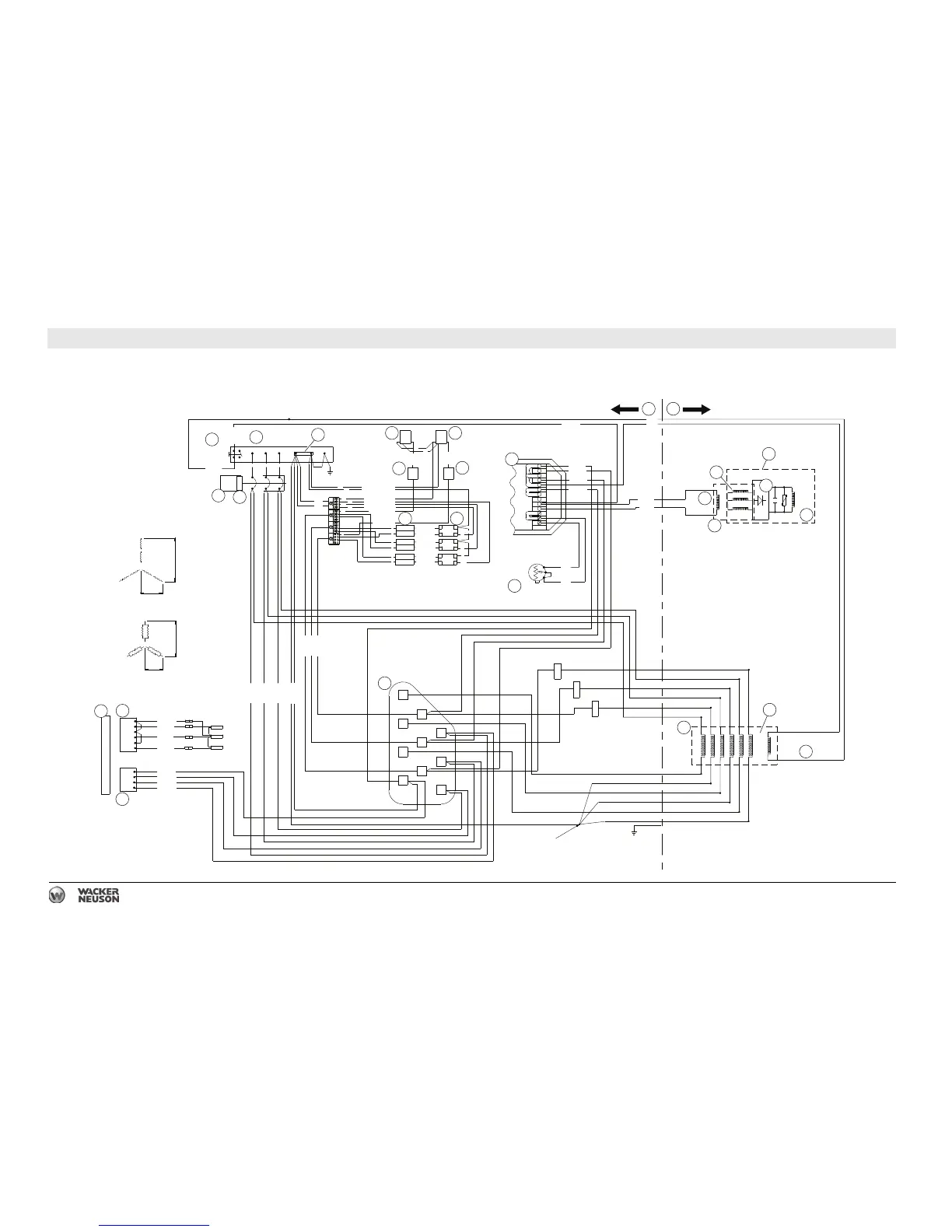
27 Schematics, Machines with Deep Sea Controller
27.1 AC Schematic: G 230 / G 240
L-L
L-N
L-N
L-L
ROTOR
MAIN
FIELD
ROTOR
RECTIFIER
STATOR
GENERATOR
(ALTERNATOR)
RED
RED
BLU/WHT
5
6
2
1
3
B
+
0
4
-
VIO
WHT
(POWER)
(EXCITER)
GROUND GENERATOR
HOUSING TO FRAME
TERMINATE AT GENERATOR
TERMINAL BLOCK
26 BRN
17
12
25 BRN
11
18
14
13
GROUND TO
ENCLOSURE BOX
STUD
GN
BOND
BAR
GRN/YEL 10GA
LT BLU 10GA
GRN/YEL 14GA
LT BLU 14GA
2
1
5
4
8
7
6
3
16
N
BRN 14GA
BRN 14GA
LT BLU 10GA
15
BLK
6GA
LT BLU 10GA
(3X) 2 PAIRS #2 BLK
L3
L2
L1
LUG SAFETY
LIMIT
SWITCH
78 BLU
MECHANICAL LUGS
BLK 6GA
BLK 6GA
BLK 6GA
PAIR #2 BLK
PAIR #2 BLK
PAIR #2 BLK
PAIR #2 BLK
PAIR #2 BLK
CT-3
36B
CT-1
36A
CT-2
L2
L1
L3
N
SHUNT
EXCITER
STATOR
AUX
WINDING
7
9
11
3
1
5
8
10
12
4
2
6
CT1
CT2
CT3
STATOR
MAIN
WINDINGS
PAIR
#2
W
Y
G
X
W
G
Y
X
G
W
X
Y
R3
R2
R1
L1-N = 277V
L2-N = 277V
L3-N = 277V
L1-L2= 480V
L2-L3= 480V
L3-L1= 480V
3
4
N
L1
2
1
L2
6
5
7
L1
1
3
9
L3
10
11
8
12
U1
1
U2
3
Y
6
Z
10
V2
7
X
2
W1
9
O
N
W2
11
V1
5
2
6
N
7
5
L2
8
4
10
L3
11
9
12
L1-N = 120V
L2-N = 120V
L3-N = 120V
L1-L2= 208V
L2-L3= 208V
L3-L1= 208V
16
10
240V
50A
RCPT
15
9
240V
50A
RCPT
240V
50A
RCPT
14
178172_02
36 WHT
37 BRN
38 YEL
39 ORN
40 WHT
41 ORN
43 YEL
42 BRN
ELECTRONIC CONTROL BOARD
PLUG 5
CURRENT TRANSFORMER
INPUTS
PLUG 3
LINE VOLTAGE
INPUTS
MAIN
BREAKER
79 BLU/VV
CT COM
74
CT COM
68
CT COM
71
CT1 69
CT2
72
CT3
75
YEL (+)
BLU (-)
51 WHT/BLK
52 WHT/BLU
53 WHT/VIO
53 WHT/ORG
REG. TYPE UVR 6
150K
POTENTIOMETER
VOLTAGE ADJUST
120V
GFI
RECPT
120V
GFI
RECPT
120V
20A
BRKER
120V
20A
BRKER
20 BLK 10GA
19 BLK 10GA
240V 50A
BREAKER
240V 50A
BREAKER
240V 50A
BREAKER
23 BLK 10GA
22 BLK 10GA
21 BLK 10GA
24 BLK 10GA
35
37
39
41
1
2
3
4
5
6
7
8
9
10
11
12
13
14
16
17
18
19
20
21
22
23
24
25
15
7
6
26

Table of Contents

Other manuals for Wacker Neuson G 240