EasyManua.ls Logo

Wacker Neuson G 240

Wacker Neuson G 240
254 pages
To Next Page IconTo Next Page
To Next Page IconTo Next Page
To Previous Page IconTo Previous Page
To Previous Page IconTo Previous Page
Loading...
Schematics, Machines with Basler Controller G 230 / G 240
224
wc_tx003749gb_FM10.fm
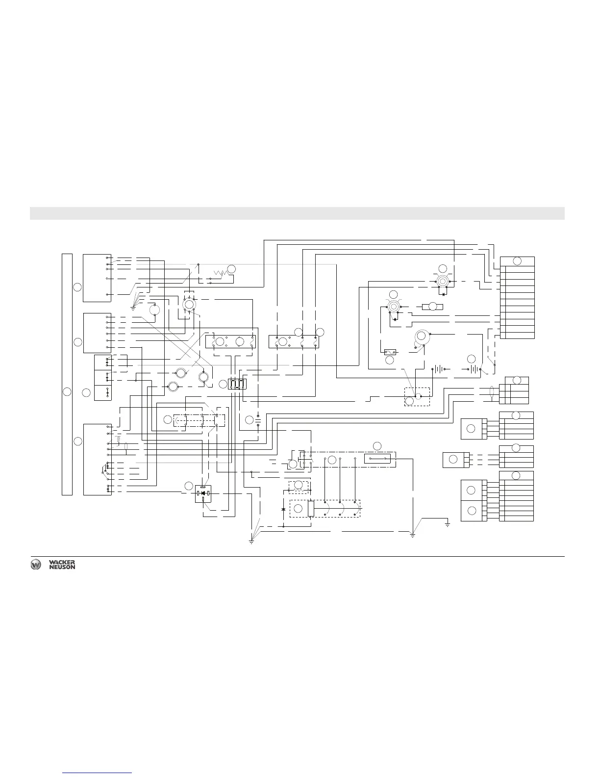
26.5 DC Schematic: G230 Cummins T4i
wc_gr011990
B
B
J1939-
J1939-
A
A
J1939+
J1939+
C
C
SHIELD
SHIELD
A
A
+24V ECM POWER
+24V ECM POWER
F
F
+24V SERVICE LINK
+24V SERVICE LINK
H
H
KEYSWITCH
KEYSWITCH
E
E
STARTER SOLENOID
STARTER SOLENOID
B
B
THROTTLE INPUT
THROTTLE INPUT
FAN SPEED SIG.
FAN SPEED SIG.
P
P
FAN SPEED RETURN
FAN SPEED RETURN
S
S
AIR HTR RETURN
AIR HTR RETURN
R
R
AIR HEATER SIG.
AIR HEATER SIG.
J
J
-24V ECM POWER
-24V ECM POWER
K
K
DATA LINK RETURN
DATA LINK RETURN
1
1
SENSOR SUPPLY
SENSOR SUPPLY
2
2
SIGNAL
SIGNAL
3
3
SENSOR RETURN
SENSOR RETURN
3
3
OEM SENSOR RTN
OEM SENSOR RTN
4
4
DPF DELTA P
DPF DELTA P
5
5
DPF OUT PRESSURE
DPF OUT PRESSURE
2
2
OEM SENSOR SUPPLY
OEM SENSOR SUPPLY
7
7
DOC OUTLET TEMP
DOC OUTLET TEMP
1
1
TEMP RETURN
TEMP RETURN
8
8
DOC INLET TEMP
DOC INLET TEMP
6
6
DPF OUTLET TEMP
DPF OUTLET TEMP
1
1
PRESSURE
PRESSURE
2
2
SENSOR SUPPLY
SENSOR SUPPLY
3
3
TEMPERATURE
TEMPERATURE
4
4
SENSOR RETURN
SENSOR RETURN
1
1
2
2
3
3
4
4
A
A
B
B
C
C
1
1
2
2
3
3
4
4
1
1
2
2
3
3
4
4
B
B
A
A
C
C
59
59
88
88
10A
10A
FUSE
FUSE
48
48
101
101
102
102
47
47
46
46
WHT
WHT
RED
RED
2/0 AWG
2/0 AWG
L0
L0
GRD
GRD
L3
L3
L2
L2
RED
RED
12 AWG
12 AWG
L1
L1
ORG
ORG
ORG
ORG
45
45
YEL
YEL
WHT
WHT
YEL
YEL
BLK
BLK
62
62
87
87
95
95
48
48
50
50
49
49
56
56
55
55
RED
RED
56
56
BAT+ 3
BAT+ 3
59
59
GROUND 1
GROUND 1
60
60
REMOTE START 27
REMOTE START 27
61
61
62
62
SENDER COM 11
SENDER COM 11
FUEL LEVEL 9
FUEL LEVEL 9
88
88
63
63
64
64
75
75
73
73
ORG
ORG
60
60
45
45
44
44
GRN
GRN
NO
NO
ORG
ORG
50
50
44
44
YEL
YEL
ORG
ORG
34
34
61
61
46
46
93
93
64
64
RED
RED
NC
NC
RED
RED
NC
NC
VIO
VIO
RED
RED
RED
RED
RED
RED
BAT - 2
BAT - 2
80
80
83
83
84
84
85
85
RUN MODE 29
RUN MODE 29
REMOTE START 28
REMOTE START 28
MODE
MODE
BREAKER 30
BREAKER 30
TRIPPED
TRIPPED
TRIP BREAKER 56
TRIP BREAKER 56
E-STOP 47
E-STOP 47
REMOTE ANNUNCIATOR
REMOTE ANNUNCIATOR
COMMON 51
COMMON 51
PREALARM 53
PREALARM 53
E-STOP 46
E-STOP 46
ALARM 52
ALARM 52
BAT+ 55
BAT+ 55
49
49
GROUND TO
GROUND TO
ENCLOSURE
ENCLOSURE
BOX SMALL
BOX SMALL
STUD (M8)
STUD (M8)
START
START
FUEL
FUEL
93
93
BLK
BLK
RED
RED
WHT/VIO
WHT/VIO
YEL
YEL
VIO
VIO
GRY
GRY
TAN/WHT
TAN/WHT
TAN
TAN
81
81
82
82
82
82
83
83
84
84
94
94
94
94
96
96
96
96
86
86
74
74
95
95
90
90
91
91
92
92
92
92
81
81
VIO
VIO
BLK
BLK
BLK
BLK
BLK
BLK
BLK
BLK
BLK
BLK
GRN
GRN
GRN/YEL
GRN/YEL
BLU
BLU
RED
RED
RED
RED
BLU
BLU
GRY
GRY
TAN
TAN
7.5A
7.5A
FUSE
FUSE
B+
B+
CAN L 48
CAN L 48
CAN H 49
CAN H 49
SHIELD 50
SHIELD 50
63
63
34
34
GRN
GRN
YEL
YEL
SHIELD
SHIELD
BLK
BLK
2/0 AWG
2/0 AWG
YEL
YEL
BLK
BLK
97
97
86
86
85
85
97
97
BLU
BLU
RED
RED
98
98
87
87
98
98
RED
RED
99
99
BLK
BLK
120 OHM
120 OHM
67
67
68
68
IDLE 21
IDLE 21
RED
RED
101
101
BLK
BLK
4 AWG
4 AWG
YEL
YEL
BLK
BLK
RED
RED
2/0 AWG
2/0 AWG
20A
20A
FUSE
FUSE
5A
5A
FUSE
FUSE
1A
1A
FUSE
FUSE
B-
B-
BLACK
BLACK
4 AWG
4 AWG
RED
RED
12 AWG
12 AWG
BLK
BLK
103
103
BLK
BLK
103
103
105
105
106
106
102
102
110
110
105
105
110
110
106
106
107
107
104
104
104
104
BLK
BLK
12 AWG
12 AWG
BLK
BLK
YEL
YEL
BLK
BLK
4 AWG
4 AWG
RED
RED
RED
RED
RED
RED
107
107
108
108
108
108
RED
RED
12 AWG
12 AWG
109
109
109
109
RED
RED
12 AWG
12 AWG
RED
RED
12 AWG
12 AWG
VIO
VIO
112
112
BLK
BLK
111
111
111
111
VIO
VIO
112
112
GRN
GRN
YEL
YEL
SHIELD
SHIELD
113
113
RED
RED
10 AWG
10 AWG
89
89
89
89
GRN/YEL
GRN/YEL
BLK PAIR
BLK PAIR
2 AWG
2 AWG
BLU
BLU
BLU/WHT
BLU/WHT
80
80
BLK
BLK
10 AWG
10 AWG
63
63
YEL
YEL
99
99
VIO
VIO
ORG
ORG
44
44
44
44
78
78
79
79
GRN/YEL
GRN/YEL
29
29
27
27
28
28
BLK
BLK
RED
RED
BLU
BLU
73
73
REGEN LIGHT 54
REGEN LIGHT 54
119
119
ORG
ORG
REGENERATION 18
REGENERATION 18
115
115
WHT
WHT
117
117
WHT
WHT
116
116
118
118
BLK
BLK
120
120
BLK
BLK
119
119
118
118
117
117
TOGGLE
TOGGLE
SWITCH
SWITCH
121
121
BLK
BLK
121
121
113
113
BLK
BLK
10 AWG
10 AWG
-
-
+
+
SHUNT
SHUNT
87
87
85
85
30
30
86
86
-
-
+
+
1
2
6
3
5 37
38 39
4
7
8
12
14
13
15
9
11
16
17
18
20
23
24
25
21
22
19
26
27
28
29
30
31
32
33
34
35
36
5
17

Table of Contents

Other manuals for Wacker Neuson G 240