EasyManua.ls Logo

Wacker Neuson G 240 - DC Electrical Schematic Section B: G 230 Cummins T4 f

Wacker Neuson G 240
254 pages
Print Icon
To Next Page IconTo Next Page
To Next Page IconTo Next Page
To Previous Page IconTo Previous Page
To Previous Page IconTo Previous Page
Loading...
Schematics, Machines with Deep Sea Controller G 230 / G 240
242
wc_tx003750gb_FM10.fm
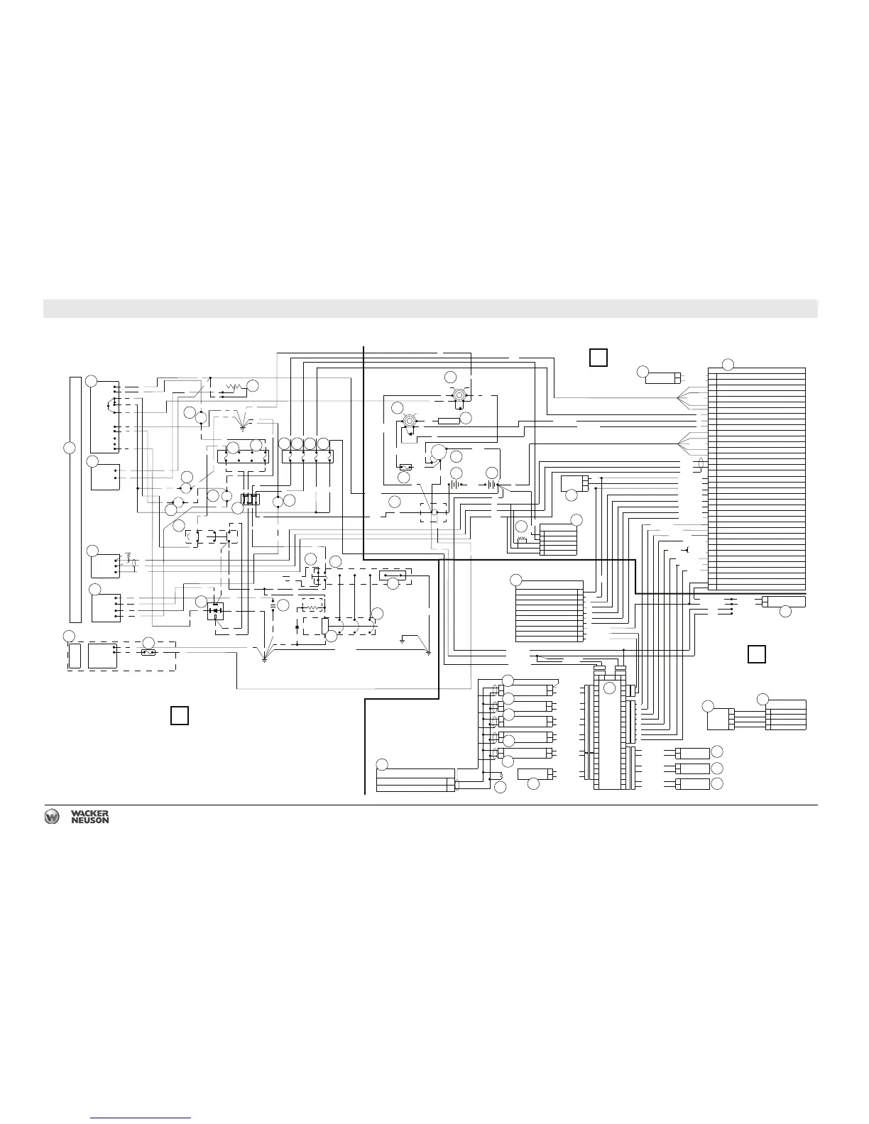
27.7 DC Schematic: G 230 Cummins T4f
-+
-+
5100015549_s1_01
BAT+ 2
PLUG 1
POWER & OUTPUTS
BAT - 1
TRIP BREAKER 11
PREALARM 10
ALARM 9
START
FUEL
REGEN LIGHT 8
GROUND 7
56
63
64
80
3
5
4
34
86
119
59
BK
RD
BK
BK
BK
BK
RD
BK
ELECTRONIC CONTROL UNIT
81
SENDER COM 15
FUEL LEVEL 19
PLUG 2
SENSOR INPUTS
62
PLUG 3
CANBUS
PLUG 6
CONTACT INPUTS
REMOTE START 60
BREAKER 61
TRIPPED
CAN L 26
CAN H 25
SCR 27
IDLE 64
REGENERATION 65
BK
GN
YL
SHIELD
120 OHM
67
68
BK
BK
BK
85
60
115
117
BLK
TELEMATICS
UNIT
150
151
RED
NOT USED ON
SOME MODELS
BK
BAT+ 2
BAT - 1
152
RED
5A FUSE
47
46
BK
87
98
RD
SHUNT
TRIP
RELAY
99
150
BK
202
RD
201
BK
GROUND TO ENCLOSURE
BOX SMALL STUD (M8)
BK
BK
86
85
97
BK
99
BK
BK
45
60
45
44
BK
BK
43
43
78
BK
BK
SHUNT
89 BK 10 AWG
L3L2L1
RD
MECHANICAL LUGS
50
BK
BU/WH
79
BOND TO
FRONT
PANEL
DOOR
GROUND TO
ENCLOSURE
BOX, LARGE
STUD (1/2")
L0
BOND BAR
GRD
BLK PAIR
2 AWG
CUMMINS J7B
DOWNSTREAM
SCR NOx SENSOR
CUMMINS J6
DEF TANK TEMP/QUALITY/
LEVEL SENSORS
CUMMINS J17
DOC INLET/OUTLET
TEMP SENSORS
CUMMINS J7A
UPSTREAM DOC
NOx SENSOR
CUMMINS J10
SCR INLET/OUTLET
TEMP SENSORS
21
34
13
24
21
34
21
34
21
34
CUMMINS CC24B 24 PIN
CROSSOVER CONNECTOR
AFTERTREATMENT J1939 (-)
23
AFTERTREATMENT J1939 (+)
22
GN 20 AWG
YL 20 AWG
SHIELD
CUMMINS J31
DEF INJECTOR
1
2
120 OHM
186 RD 18 AWG
187 BK 18 AWG
177 RD 18 AWG
179 RD 18 AWG
181 RD 18 AWG
182 RD 18 AWG
184 RD 18 AWG
176 BK 18 AWG
178 BK 18 AWG
180 BK 18 AWG
183 BK 18 AWG
185 BK 18 AWG
188 BK 10 AWG
192 BK 12 AWG
189 RD 10 AWG
SHIELD
190 RD 12 AWG
191 RD 12 AWG
6C 6A 5A 5C
AFTERTREATMENT RELAY BOX
4A 1C
4B 1D
4E 2B
4C 2D
2F
2G
4D 2E
2C
4F 2H
3A 2A
158
159
160
164
161
167
166
165
4H
4G 1E
3H 1A
1B
3D 1G
3E
1F
1H
171 BK 18 AWG
173 BK 18 AWG
175 BK 18 AWG
170 RD 18 AWG
172 RD 18 AWG
174 RD 18 AWG
CUMMINS J29
DEF BACKFLOW LINE
HOSE HEATER
CUMMINS J30
DEF SUPPLY LINE
HOSE HEATER
CUMMINS J28
DEF PRESSURE LINE
HOSE HEATER
1
2
1
2
1
2
AIR CLEANER
TBAP SENSOR
1
2
3
4
1 PRESSURE
2 SENSOR SUPPLY
3 TEMPERATURE
4 RETURN
CUMMINS CONNECTOR
'JP1'
156 BK 18 AWG
168 BK 18 AWG
169 RD 18 AWG
198 BK
12 AWG
144 BK
151
150
149
153
152
CUMMINS J26
SUPPLY MODULE CONNECTOR
SENSOR +5V POWER SUPPLY 2
OEM SENSOR RETURN (-) 4
DEF DRIVER 10
DEF INJECTOR PRESSURE SENSOR SIGNAL 3
SUPPLY MODULE PUMP RETURN 8
DEF PUMP POWER 9
DEF REVERTING VALVE 11
DEF PUMP RETURN 12
BATTERY RETURN (-) 6
DEF SUPPLY MODULE 24V B+ 5
18
AWG
148
RD 18
AWG
CUMMINS J3
DIAGNOSTIC CONNECTOR
A
DATALINK RETURN
B
+24 V DATALINK
C
J1939+
D
J1939-
E
SHIELD
120 OHM
20 AWG
20 AWG
20 AWG
194
RD
193
BK
CUMMINS J22
COOLANT LEVEL
SENSOR
C
B
A
143 BK
18 AWG
147
RD
18 AWG
RD
2/0 AWG
GN
YL
SHIELD
BK 18 AWG
188
110
189
151
RED
RD
2/0 AWG
B+
BK
2/0 AWG
101
B-
BK
4 AWG
105
RD
10 AWG
BK 10 AWG
113
102
RD
12 AWG
BK
4 AWG
150A FUSE
BK
12 AWG
INTAKE HEATER
INTAKE
HEATER
RELAY
204
RD
BK
104
BK
4 AWG
101
102
STARTER
RELAY
206
RD
205
BK
203
RD
12 AWG
103
63
BK
110 BK 12 AWG
104 BK 18 AWG
105 BK 18 AWG
155 BK 18 AWG
157 RD 18 AWG
200 RD
199 BK
4
CUMMINS J27
DEF TANK HEATING VALVE
1
1 RD 18 AWG
2 BK 18 AWG
57 DEF TANK HEATING VALVE RETURN
82 DEF TANK HEATING VALVE SUPPLY
154 BK 18 AWG
165 BK 18 AWG
166 BK 18 AWG
167 RD
18 AWG
54 DEF PUMP MOTOR RETURN
79 DEF PUMP MOTOR SUPPLY
81 DEF REVERTING VALVE
38 DEF PRESSURE LINE HEATER DIAGNOSTIC
39 DEF BACKFLOW LINE HEATER DIAGNOSTIC
40 DEF SUCTION LINE HEATER DIAGNOSTIC
3 DEF LINE HEATERS RELAY CONTROL
84 DEF LINE HEATER CURRENT MONITOR (1 OF 2)
85 DEF LINE HEATER CURRENT MONITOR (2 OF 2)
7 DEF SUPPLY MODULE RELAY CONTROL
53 DEF DOSING INJECTOR LOW
77 DEF DOSING INJECTOR HIGH
BATTERY SUPPLY (+)
BATTERY SUPPLY (+)
KEY SWITCH
INTAKE AIR RELAY RETURN
INTAKE AIR RELAY SIGNAL
BATTERY SUPPLY (-)
BATTERY SUPPLY (-)
51 BATTERY SUPPLY (-)
52 BATTERY SUPPLY (-)
73 BATTERY SUPPLY (-)
46 J1939 -
22 J1939 +
32 COOLANT SENSOR RETURN
35 COOLANT SENSOR SIGNAL
8 SENSOR (+5V) SUPPLY
6 DEF SUPPLY MODULE PUMP MODE/TEMPERATURE DRIVER
16 DEF PRESSURE SENSOR
CUMMINS J2 ECU CONNECTOR
13 WATER IN FUEL SENSOR
62 ECM RETURN
1 BATTERY SUPPLY (+)
25 BATTERY SUPPLY (+)
26 BATTERY SUPPLY (+)
27
28
5
76
75
49
50
130 RD 18 AWG
131 BK 18 AWG
132 RD 18 AWG
133 RD 18 AWG
134 RD 18 AWG
135 RD 18 AWG
136 RD 18 AWG
112
137 BK 18 AWG
138 BK 18 AWG
139 BK 18 AWG
140 BK 18 AWG
141 BK 18 AWG
105
104
142 BK 18 AWG
145 BK 18 AWG
20 AWG
20 AWG
20 AWG
146 RD 18 AWG
149 BK 18 AWG
150 BK 18 AWG
151 BK 18 AWG
152 RD 18 AWG
153 BK 18 AWG
158 BK 18 AWG
159 BK 18 AWG
160 BK 18 AWG
161 BK 18 AWG
162 BK 18 AWG
164 BK
18 AWG
163 BK 18 AWG
CUMMINS J78
WATER IN FUEL
SENSOR
1
2
109 RD 12 AWG
109
RD 18 AWG
HOUR
METER
91
92
BK
BK
120
BK
119
LIGHT
87
95
48
50
GRN
NO
88
64
RED
NC
RED
NC
EMERGENCY
STOP
SWITCH
RD
RD
RD
97
RD
98
108
BK
118
117
RD
113
115
BK
TOGGLE
SWITCH
TOGGLE
SWITCH
44
30A
FUSE
RD
12 AWG
FUSE
BK
18 AWG
BK
18 AWG
195
196
197
195 RD
5A
FUSE
5A
FUSE
10A
109
112
RD
12 AWG
RD
18 AWG
BK
18 AWG
192
194
10A
FUSE
48
49
GROUND TO
ENCLOSURE
BOX SMALL
95
BK
7.5A
FUSE
BK
88
RD
49
RD
STUD (M8)
116
118
FUEL LEVEL
62
TOGGLE
SWITCH
59
BK
BK
90
92
81
BK
BK
103
80
BK
56
BK
STARTER
MOTOR
BATTERY
DISCONNECT
SWITCH
NOT USED
ON SOME
MODELS
REMOTE
START
NOT USED ON
SOME MODELS
MAIN
BREAKER
SEE AC SCHEMATIC
FOR LUG DOOR
SWITCH N.C. WIRING
87
86
85
30
CONNECTOR 1 (BLACK)
CONNECTOR 5
(GRAY)
CONNECTOR 6
(BLACK)
CONNECTOR 2 (GRAY)
CONNECTOR 1
(BLACK)
CONNECTOR 4 (GREEN)
CONNECTOR 3 (BLUE
10
11
12
13
14
16
17
18
19
20
21
22
23
24
25
26
27
28
29
30
31
32
33
34
35
36
37
38
39
40
15
51
52
53
54
41
42
43
44
47
48
49
45
46
50
1
4
3
6
7
8
5
9
2
12
20
30
A
B
C

Table of Contents

Other manuals for Wacker Neuson G 240