EasyManua.ls Logo

Wacker Neuson G 240 - Page 25

Wacker Neuson G 240
254 pages
Print Icon
To Next Page IconTo Next Page
To Next Page IconTo Next Page
To Previous Page IconTo Previous Page
To Previous Page IconTo Previous Page
Loading...
wc_tx003568gb_FM10.fm
25
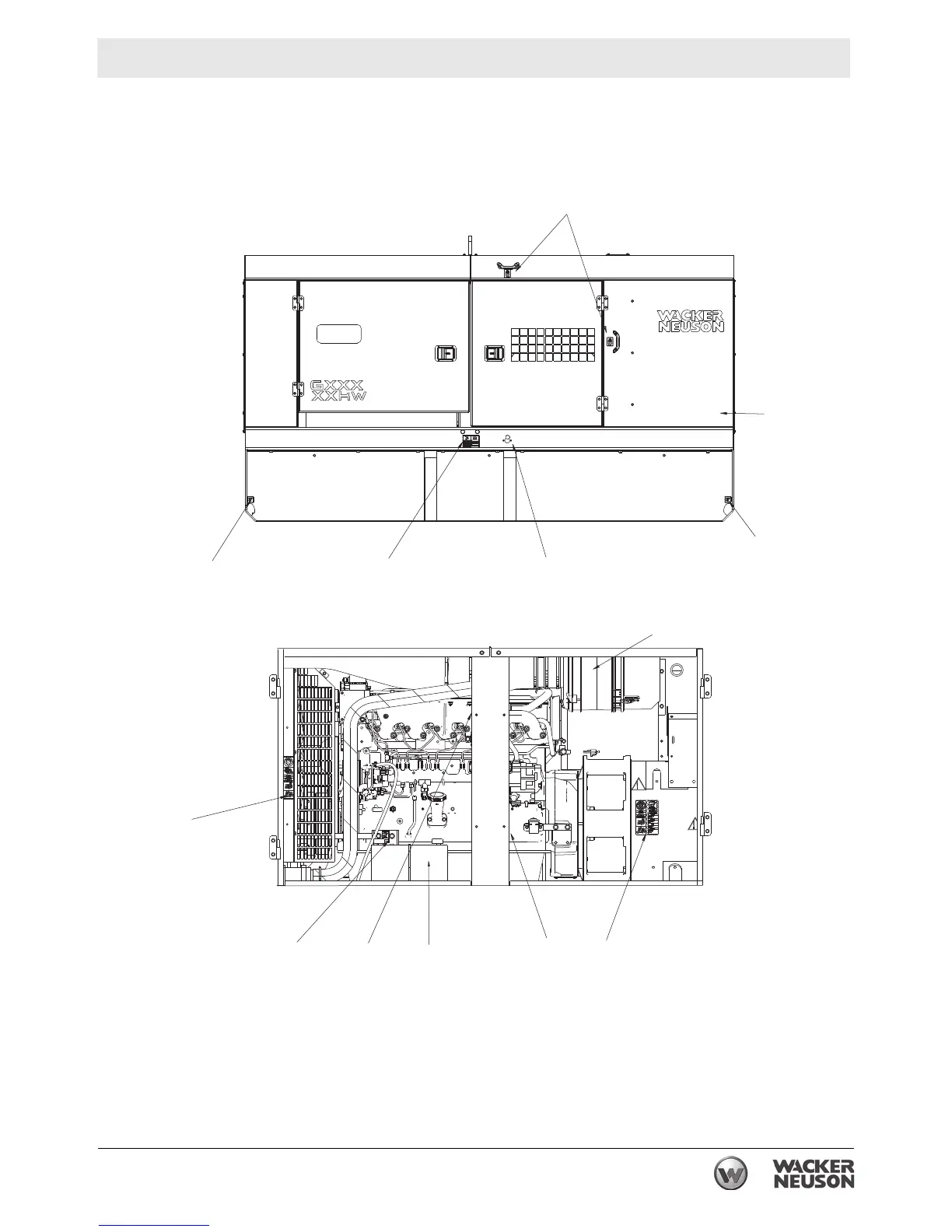
Mobile Generator
Label Locations
wc_gr009229
UU
G
H
J
R
GG
V V
WW
FF
R
AKK
H

Table of Contents

Other manuals for Wacker Neuson G 240