EasyManua.ls Logo

Wolf BWL-1S-07 - BWL-1 S(B) Dimensions; Indoor Module

Wolf BWL-1S-07
120 pages
Print Icon
To Next Page IconTo Next Page
To Next Page IconTo Next Page
To Previous Page IconTo Previous Page
To Previous Page IconTo Previous Page
Loading...
16 3064298_201805
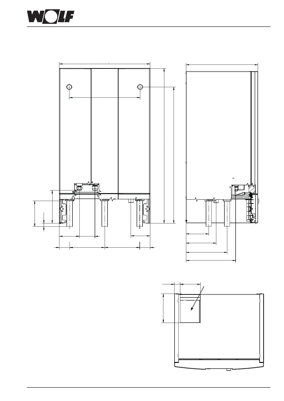
BWL-1S(B)dimensions
7 BWL-1S(B)dimensions
7.1 Indoormodule
373
440
344
790
118
695
157
214
258
97 75
50
170
170
93
50
17
167
132
28
100
143
Return, heating / DHW 28x1
Liquid line 5/8" UNF
Hot gas line 7/8" UNF
Flow, heating 28x1
Hose, safety valve DN 25
Flow, DHW 28x1
Electrical connection

Table of Contents

Other manuals for Wolf BWL-1S-07

Related product manuals