EasyManua.ls Logo

Wolf BWL-1S-07 - Filling the Refrigerant Lines; Filling the Indoor Module and Refrigerant Lines; Checking the Refrigerant Circuit for Leaks

Wolf BWL-1S-07
120 pages
Print Icon
To Next Page IconTo Next Page
To Next Page IconTo Next Page
To Previous Page IconTo Previous Page
To Previous Page IconTo Previous Page
Loading...
30 3064298_201805
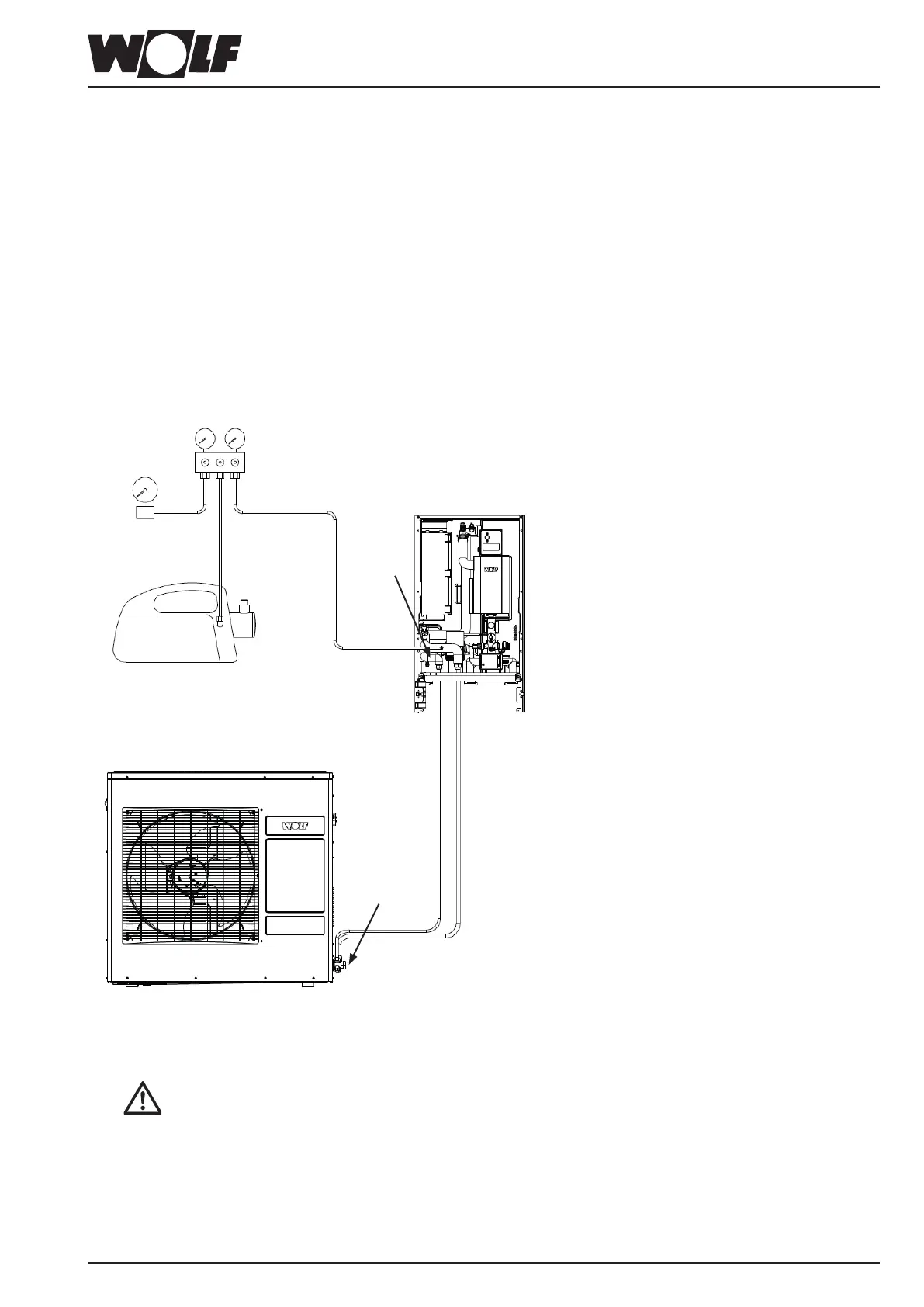
Fillingtherefrigerantlines
16 Fillingtherefrigerantlines
16.1 Fillingtheindoormoduleandrefrigerantlines
Singlerefrigerantlinelength<12m
Thepre-lledquantityofrefrigerantintheoutdoormoduleissufcient
for a single line length of 3 to 12 m.
Singlerefrigerantlinelength>12m
Line lengths of 12 - 25 m must be topped up with an additional 60 g/m of refrigerant R410A.
The additional refrigerant can be added after evacuating the refrigerant lines and before opening the
shut-off valves on the outdoor module.
Outdoor module
Indoor module
Shut-off valves
BWL-1S(B)-05hotgaslineØ12mm
BWL-1S(B)-07/10/14/16hotgaslineØ16mm
BWL-1S(B)-05refrigerantlineØ6mm
BWL-1S(B)-07/10/14/16refrigerantlineØ10mm
Service valve (Schrader valve)
Pressure
gauge block
Vacuum gauge
with shut-off valve
Vacuum pump
Liquid line
Hot gas line
16.2 Checkingtherefrigerantcircuitforleaks
R410A is an air-displacing, non-toxic gas. Uncontrolled release of refrigerant
may result in breathing difficulties and asphyxiation.
Check the connections for refrigerant leaks:
Allaredconnectionsontherefrigerantlinesbetweentheindoorandoutdoorunit.
All soldered joints and screw connections on the refrigerant lines in the indoor and outdoor module.
Carry out the leak and pressure test using dry nitrogen.

Table of Contents

Other manuals for Wolf BWL-1S-07

Related product manuals