EasyManua.ls Logo

YASKAWA SGM-A3

YASKAWA SGM-A3
513 pages
To Next Page IconTo Next Page
To Next Page IconTo Next Page
To Previous Page IconTo Previous Page
To Previous Page IconTo Previous Page
Loading...
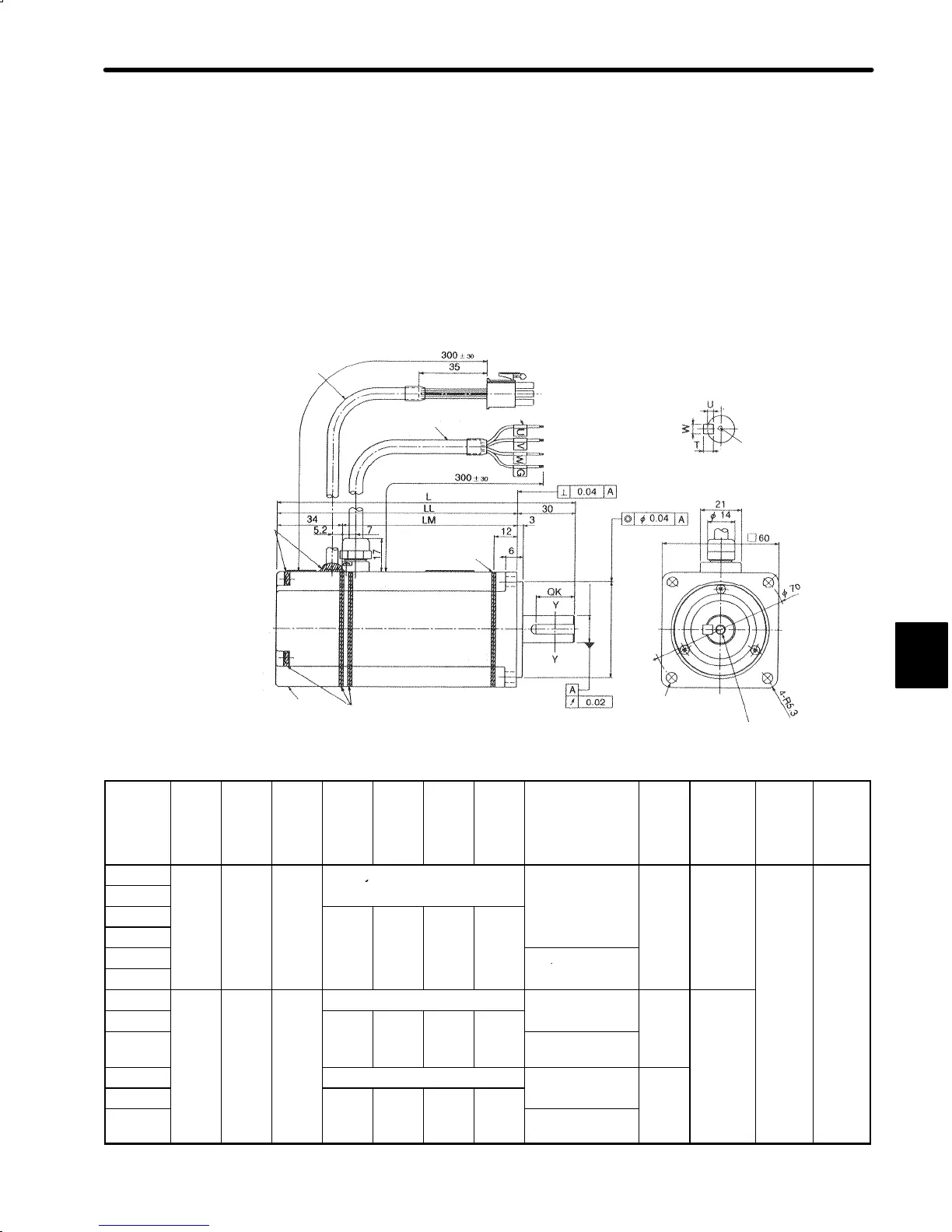
5.4 Σ-Series Dimensional Drawings
291
Note 1) The detector uses an incremental encoder 2048 P/R.
2) Type “V” indicates 200 V specification, and type “W” indicates 100 V specification.
3) “A3V(W)314”, “A3V(W)316”, “A5V(W)314”, “A5V(W)316”, “01V(W)314” and
“01V(W)316” have a keyed shaft. The keyway complies with JIS B 1301-1976 (preci-
sion). A straight key is supplied.
4) The quoted allowable radial load is the value at a position 20 mm (0.79 in.) from the mo-
tor mounting surface.
200 W (0.27
HP), 300 W (0.40 HP), 400 W (0.53 HP)
(0.67)
Encoder Lead
UL2854
Incremental Encoder
2048 P/R
Cross-section Y-Y
(0.20)
4-φ5.5 (φ0.22)
MTG Holes
Sealant
Motor Lead φ7
(φ0.29)
Sealant
(0.0016)
(0.0008)
(1.34)
(0.83)
(11.81¦1.18)
(1.38)
(0.12)
(1.18)
(11.81¦1.18)
φ50
0
-0.025
1.97
-0.0010
0
φ
(
)
(0.28)
(0.24)
(φ2.76)
(2.36)
(φ0.55)
(0.47)
Shaft end screw hole
(SGM-jjV(W)316,
with key type only)
Marked Wire
Sealant
φ14
0
-0.011
0.55
-0.0004
0
φ
(
)
(φ0.0016)
Screw
Type
SGM-
L LL LM QK U W T Screw
dimensions
Out-
put
W
(HP)
Approx.
mass
kg
(lb)
Allow-
able
radial
load
N (lb)
Allow-
able
thrust
load
N (lb)
02V312
126.5
( 98)
96.5
(3 80)
62.5
(2 6)
No key
200
(0 2 )
1.1
(2 3)
245
(
1
)
74
(16
6
)
02W312
(4.98) (3.80) (2.46)
y
(0.27) (2.43) (55.1) (16.6)
02V314
20
(0 9)
3
(0 12)
5
(0 20)
5
(0 20)
02W314
(0.79) (0.12) (0.20) (0.20)
02V316
M5,
dh
8
(0 31)
02W316
,
depth 8 (0.31)
03W312
154.5
(6 08)
124.5
( 90)
90.5
(3 6)
No key
300
(0 0)
1.1
(2 3)
03W314
(6.08) (4.90) (3.56)
20
(0 9)
3
(0 12)
5
(0 20)
5
(0 20)
(0.40) (2.43)
03W316
(0.79) (0.12) (0.20) (0.20)
M5,
depth 8 (0.31)
04V312 No key
400
(0 3)
04V314
20
(0 9)
3
(0 12)
5
(0 20)
5
(0 20)
(0.53)
04V316
(0.79) (0.12) (0.20) (0.20)
M5,
depth 8 (0.31)
5

Table of Contents

Related product manuals