EasyManua.ls Logo

YASKAWA SGM-A3 - Page 339

YASKAWA SGM-A3
513 pages
Print Icon
To Next Page IconTo Next Page
To Next Page IconTo Next Page
To Previous Page IconTo Previous Page
To Previous Page IconTo Previous Page
Loading...
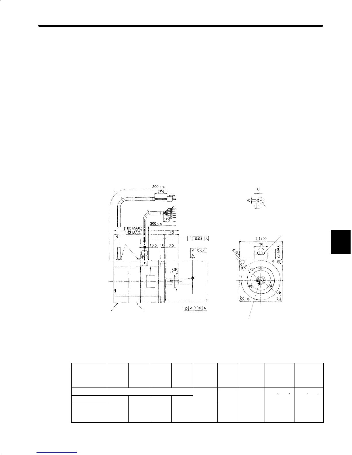
5.4 Σ-Series Dimensional Drawings
327
2) Type “V” indicates 200 V specification, and “W” indicates 100 V specification.
3) “02V(W)W14B”, “02V(W)W16B”, “03WW14B”, “03WW16B”, “04VW14B”, and
“04VW16B” have a keyed shaft. The keyway complies with JIS B 1301-1976 (precision).
A straight key is supplied.
4) The quoted allowable radial load is the value at a position 25 mm (0.98 in.) from the mo-
tor mounting surface.
5) The electromagnetic brake is only to hold the load in position and cannot be used to stop
the motor.
6) Conforms to IP55 protective structure (except connector and output shaft faces).
750 W (1.01 HP)
(1.10)
12bit Absolute
Encoder 1024 P/R
Cross-section Y-Y
4-φ10
(φ0.39)
MTG Holes
Motor Lead
UL2464 φ7(φ0.29)
Sealant
(0.0016)
(0.0008)
(11.81¦1.18)
(1.38)
(0.14)
(11.81¦1.18)
110
0
-0.035
4.33
-0.0014
0
φ
(
)
(4.72)
(0.39)
Marked Wire
Name-
plate
φ16
0
-0.011
0.63
-0.0004
0
φ
(
)
(φ0.0016)
Encoder Lead
UL20276φ8
(φ0.31)
(1.38)
(1.57)
(1.50)
(0.41)
Screw
Hex. Nut
17 (0.67)
(φ5.71)
66.7 (2.63)
(0.75)
Holding Brake
(Deenergisation Operation)
Voltage depends on the last
symbol of motor type:
B: 90VDC C: 24VDC
Brake Holding Torque = Motor
Rated Torque
(7.17 MAX)
(5.59 MAX)
(0.55)
φ
Shaft end screw hole
(SGMP-08VW16B(C),
with key type only)
Type
SGMP-
QK U W T Screw
dimen-
sions
Output
W
(HP)
Approx.
mass
kg
(lb)
Allowable
radial
load
N (lb)
Allowable
thrust
load
N (lb)
08VW12B(C) No key
750
(1 01)
6.2
(13 6 )
392 (88.1) 147 (33.0)
08VW14B(C)
22
(0 8 )
3
(0 12)
5
(0 20)
5
(0 20)
(1.01) (13.67)
(
)
(
)
08VW16B(C)
(0.87) (0.12) (0.20) (0.20)
M5
depth
8 (0.31)
5

Table of Contents

Related product manuals