EasyManua.ls Logo

YASKAWA SGM-A3 - Page 364

YASKAWA SGM-A3
513 pages
Print Icon
To Next Page IconTo Next Page
To Next Page IconTo Next Page
To Previous Page IconTo Previous Page
To Previous Page IconTo Previous Page
Loading...
SERVO SELECTION AND DATA SHEETS
5.6.1 Cable Specifications and Peripheral Devices cont.
352
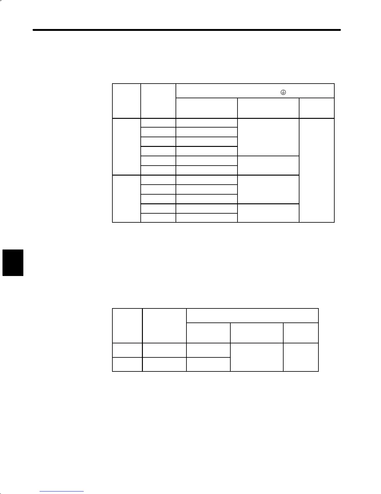
2) Cable Specifications
Cable Specifications for Main Circuit Power Input Terminals
Applied
Voltage
Servopack
Type
DR2
Main Circuit Power Input Terminal*
1
L1. L2,
DR2
Rated Input Current
A (rms)
Cable Spec.*
2
Tightening
Torque
(N¡m)
200VAC
Class
A3A j
1.3 AWG16 (HIV 1.25) Min. 0.5
Class
A5A j
1.5
01A j
2.5
02A j
4.0
04A j
6.0 AWG14 (HIV 2.0) Min.
08A j
11.0
100VAC
Class
A3B j
2.0 AWG16 (HIV 1.25) Min.
Cl
ass
A5B j
2.6
01B j
4.5
02B j
8.0 AWG14 (HIV 2.0) Min.
03B j
14.0
*1 When P, N (Y3, Y4) terminals are used, use the same size cable as those of L1, L2.
Tightening torque is the same as those of L1, L2 (0.5N¡m).
*2 The cable specifications were selected under conditions of three cables per bundle
at 40_C ambient temperature, with the rated current flowing. Max. connectable
cable size is 2.5mm
2
.
Cable Specifications for Control Circuit Power Input Terminals
Applied
Voltage
Servopack Type
DR2
Control Circuit Power Input Terminal
L, N
Rated Input
Current*
2
A (rms)
Cable Spec.*
1
Tightening
Torque
(N¡m)
200VAC
Class
All Models 0.2 AWG16
(HIV 1.25) Min.
0.5
100VAC
Class
All Models 0.4
*1 Max. connectable cable size is 2.5mm
2
.
*2 When control circuit breaker and main circuit breaker are used separately,
be aware of inrush current (30 to 40 A, for 5 ms or less) flows at control power ON.
5

Table of Contents

Related product manuals