EasyManua.ls Logo

Bertram 540 - Page 370

Default Icon
392 pages
Print Icon
To Next Page IconTo Next Page
To Next Page IconTo Next Page
To Previous Page IconTo Previous Page
To Previous Page IconTo Previous Page
Loading...
(YEL)
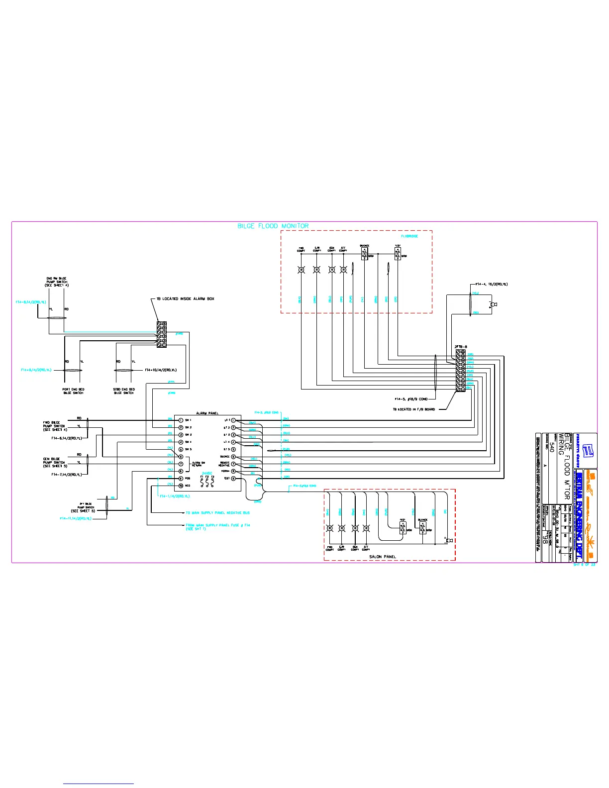
BILGE FLOOD MONITOR
(BRN)
(BLU)
(GRN)
(BLK)
F14-1,14/2(RD,YL)
FROM MAIN SUPPLY PANEL FUSE # F14
(SEE SHT 1)
TO MAIN SUPPLY PANEL NEGATIVE BUS
NEGATIVE
RETURN
24VDC
NEG
(YL)
10
POS
(R)
9
(YL)
8
F1
F3
F2
TEST
HORN+
(R)
9
8
(YL)
7
6
ALARM SW
SW 4
SW 5
5
4
REMOTE
SILENCE
7
6
LT 5
LT 4
(WH)
5
4
ALARM PANEL
SW 2
SW 3
(R)
3
(R)
2
SW 1
(R)
1
LT 3
LT 2
3
2
LT 1
1
N.O. MOM
N.C.
SILENCE
(ORG)
GEN
COMPT
COMPT
FWD
COMPT
E/R
RRR
(BLK)
(GRN)
(BLU)
(WH)
(YEL)
(R)
(BRN)
F14-3,#18,9 COND
(PUR)
SALON PANEL
N.O. MOM
N.C.
SILENCE
N.C. MOM
N.O.
TEST
(BLU)
(GRN)
(BLK)
(WH)
(BRN)
RRR
(OR)
COMPT
GEN
FWD
COMPT
E/R
COMPT
FLYBRIDGE
+
-
(ORG)
(PUR)
N.C. MOM
N.O.
TEST
YL
F14-9,14/2(RD,YL)
BILGE SWITCH
PORT ENG BED
STBD ENG BED
BILGE SWITCH
RD
YL
RD
F14-8,14/2(RD,YL)
RD
YL
#14YL
#14RD
F14-10,14/2(RD,YL)
1
2
F14-11,14/2(RD,YL)
PUMP SWITCH
AFT BILGE
YL
RD
ENG RM BILGE
PUMP SWITCH
#14RD
(OR)
(RD)
(BRN)
(YEL)
(GRN)
(PUR)
(WH)
(BLU)
(BK)
F14-2, #18,9 COND
TB LOCATED IN F/B BOARD
F14-5, #18/9 COND
(YEL)
(BLU)
(BK)
124 36 5
(GRN)
(WH)
(PUR)
8 79
2FTB-8
10
(OR)
(BRN)
(RD)
(PUR)
(YL)
(RD)
(RD)
+
-
F14-4, 16/2(RD,YL)
(YEL)
(YL)
3
4
6
5
TB LOCATED INSIDE ALARM BOX
RD
YL
F14-6,14/2(RD,YL)
FWD BILGE
PUMP SWITCH
AFT
COMPT
R
(SEE SHEET 4)
F14-7,14/2(RD,YL)
(SEE SHEET 5)
PUMP SWITCH
GEN BILGE
YL
RD
(SEE SHEET 5)
(R)
(YL)
R
COMPT
AFT
(SEE SHEET 4)
SHT 6 OF 23
WIRING
A
540
BILGE FLOOD M’TOR
TAV
02-07-08
98
FONTAINE
B540
00/3U
IM
98
-
B540_00-3U_IM_98_0
0
Group#
Job Order #
DESIG.BY:
FILE:
DATE:
APPV.BY:
Project
SCALE:
Dwg #
Layout
Dwg #
NONE
Rev.
DRAWING TITLE
MODEL:
DRAWING SIZE:
3663 NW 21 STREET, MIAMI FL. 33142 - USA - tel. (305) 633/8011 - fax (305) 633/7188 - e-mail: info@bertram.com
PROPRIETA’ DELLA FERRETTI ENGINEERING. SENZA AUTORIZZAZIONE SCRITTA DELLA STESSA IL PRESENTE DISEGNO NON POTRA’ ESSERE UTILIZZATO PER LA
COSTRUZIONE DELL’OGGETTO RAPPRESENTATO, NE COMUNICATO A TERZI O RIPRODOTTO. LA SOC. PROPRIETARIA TUTELA I PROPRI DIRITTI A RIGORE DI LEGGE

Table of Contents

Related product manuals