EasyManua.ls Logo

Case 580SR+ - Page 863

Case 580SR+
1068 pages
Print Icon
To Next Page IconTo Next Page
To Next Page IconTo Next Page
To Previous Page IconTo Previous Page
To Previous Page IconTo Previous Page
Loading...
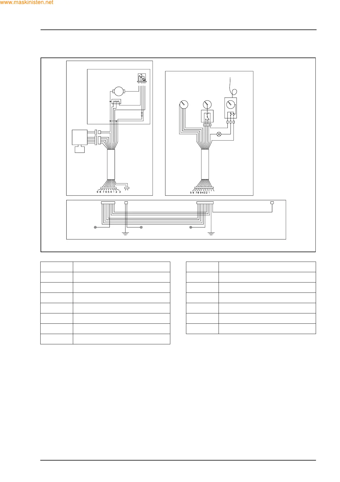
SECTION 55 - ELECTRICAL SYSTEM 35
AIR CONDITIONER SCHEMATIC
F27181
X1
pos 8
Off
11
Off
10
Off
9
6
4
3
12
S45
S45
IH
ML
C
+15
1
+
4
-
H
M
L
3
M
S
2
X110
X110
A
B
5
X111
X111
+30
+15
86
87a
87
85
30
2
1
10 11
S Evaporator box
1 3rd speed relay
2 Fuse 25 A
3 Ventilated electrical motor
4 1 and 2 speed resistor
5 Electrical cock
X111 9-way connector
X110 2-way power connector
S45 11-way connector
9 Potentiometer
10 Speed switch
11 Temperature switch
12 12 V light
A 2-way waterproof connection
B 5-way waterproof connection
www.maskinisten.net
Copyright ©

Table of Contents

Related product manuals