EasyManua.ls Logo

Case 580SR+ - Page 894

Case 580SR+
1068 pages
Print Icon
To Next Page IconTo Next Page
To Next Page IconTo Next Page
To Previous Page IconTo Previous Page
To Previous Page IconTo Previous Page
Loading...
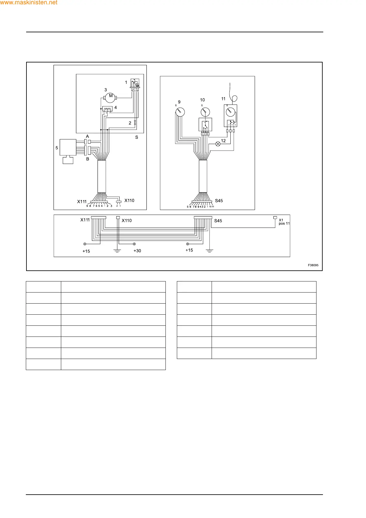
66 SECTION 55 - ELECTRICAL SYSTEM
AIR CONDITIONER SCHEMATIC
S Evaporator box
1 3rd speed relay
2 Fuse 25 A
3 Ventilated electrical motor
4 1 and 2 speed resistor
5 Electrical cock
X111 9-way connector
X110 2-way power connector
S45 11-way connector
9 Potentiometer
10 Speed switch
11 Temperature switch
12 12 V light
A 2-way waterproof connection
B 5-way waterproof connection
www.maskinisten.net
Copyright ©

Table of Contents

Related product manuals