EasyManua.ls Logo

Cisco 1240 - Page 94

Cisco 1240
216 pages
Print Icon
To Next Page IconTo Next Page
To Next Page IconTo Next Page
To Previous Page IconTo Previous Page
To Previous Page IconTo Previous Page
Loading...
5-30
Cisco 1240 Connected Grid Router Hardware Installation Guide
OL-26223-04
Chapter 5 Mounting the Router
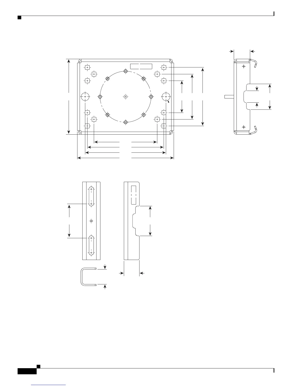
Bracket Dimensions
Figure 5-27 Pole Mount Plate Dimensions
Figure 5-28 Pole Mount Plate Clamp Dimensions
5.94
1.52
7.20
7.60
9.80
7.08
5.504.253.00 2.401.10
300626
2.603.00
1.32
1.35
300627

Table of Contents

Related product manuals