EasyManua.ls Logo

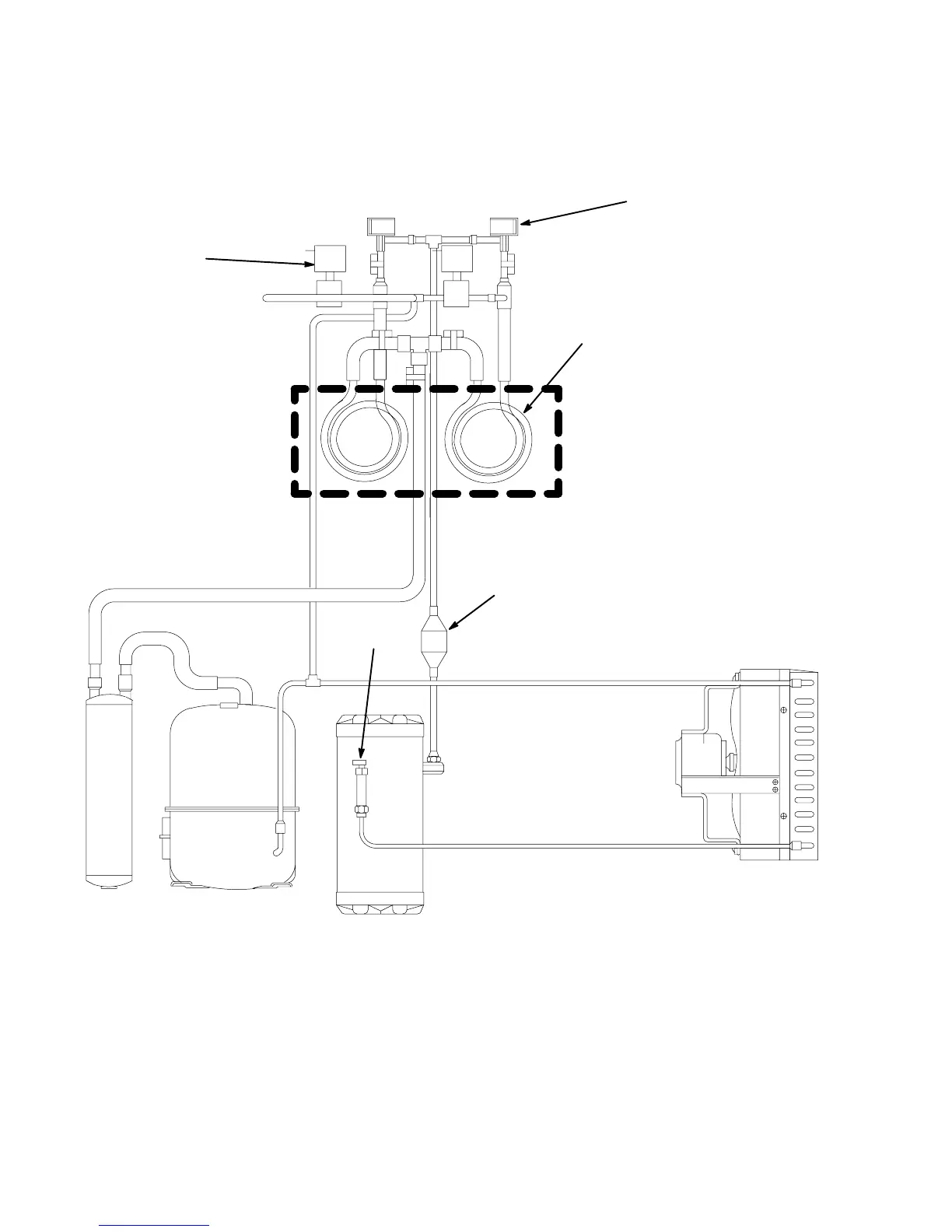
Cornelius FCB POST-MIX DISPENSER - Figure 16. Refrigeration Flow Diagram (Air-Cooled Refrigeration System)

Cornelius FCB POST-MIX DISPENSER
103 pages
Print Icon
To Next Page IconTo Next Page
To Next Page IconTo Next Page
To Previous Page IconTo Previous Page
To Previous Page IconTo Previous Page
Loading...
64
2813
Note: One refrigeration system is shown in this
illustration. A two-flavor Unit has one refrigera-
tion system and a four-flavor Unit has two refrig-
eration systems.
HOT-GAS DEFROST
SOLENOID VALVE
ASSY (2)
ELECTRONIC
EXPANSION VALVE (2)
FREEZE CYLINDER (2)
EVAPORATOR
STRAINER/DRYER
SCHREADER
VALVE
ACCUMULATOR
COMPRESSOR
RECEIVER TANK
CONDENSER COIL
FAN ASSY
FIGURE 16. REFRIGERATION FLOW DIAGRAM (AIR-COOLED REFRIGERATION SYSTEM)

Table of Contents

Related product manuals