EasyManua.ls Logo

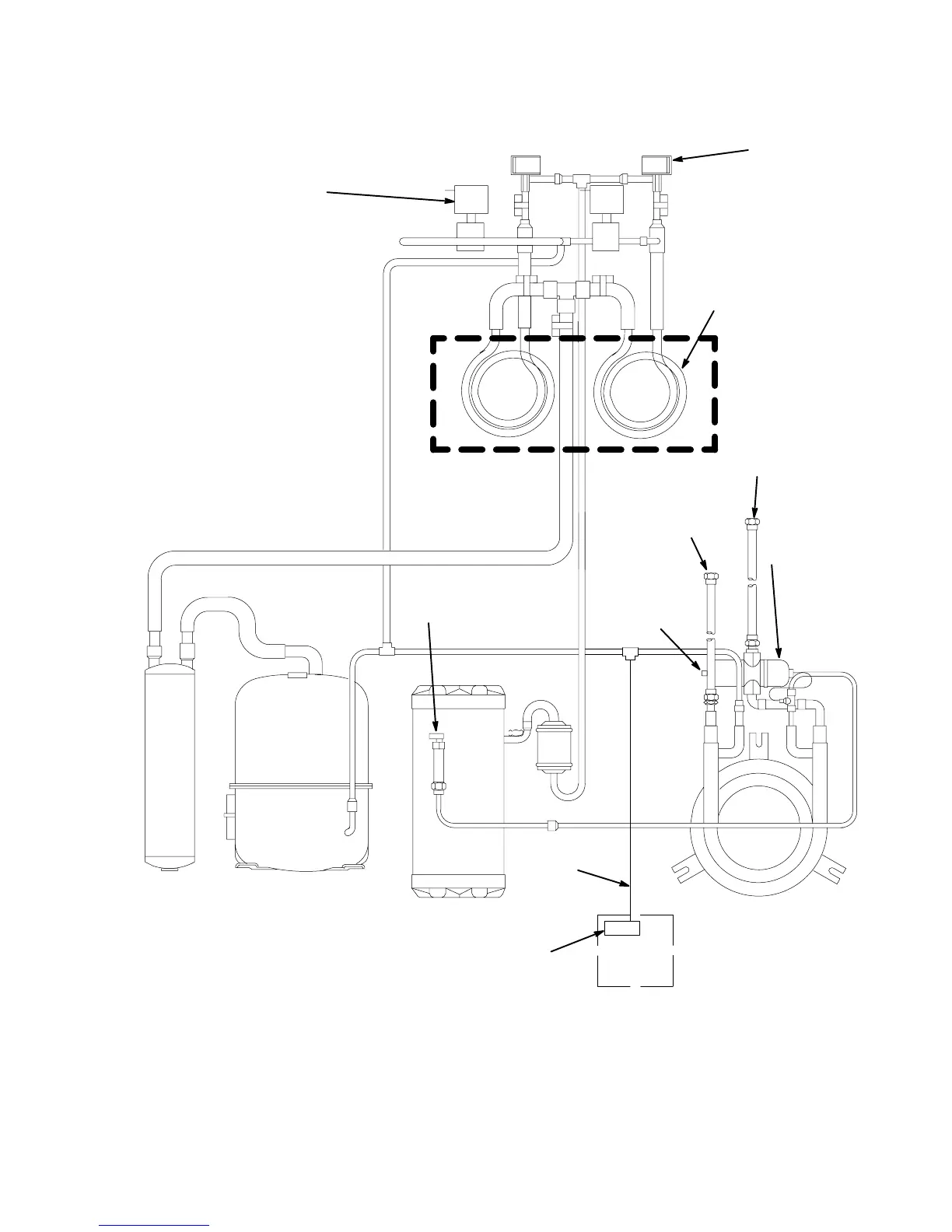
Cornelius FCB POST-MIX DISPENSER - Figure 17. Refrigeration Flow Diagram (Water-Cooled Refrigeration System)

Cornelius FCB POST-MIX DISPENSER
103 pages
Print Icon
To Next Page IconTo Next Page
To Next Page IconTo Next Page
To Previous Page IconTo Previous Page
To Previous Page IconTo Previous Page
Loading...
65 2813
Note: One refrigeration system is
shown in this illustration. A two-flavor
Unit has one refrigeration system and
a four-flavor Unit has two refrigeration
systems.
HOT GAS DEFROST
SOLENOID VALVE
ASSY (2)
ELECTRONIC
EXPANSION VALVE (2)
FREEZE CYLINDER (2)
EVAPORATOR
COOLING WATER OUT
(TO DRAIN)
COOLING WATER IN
(CITY PLAIN WATER)
ACCUMULATOR COMPRESSOR
RECEIVER TANK
*VARIABLE WATER
REGULATOR
ADJUSTMENT
SCREW
CAPILLARY
TUBE
HIGH-PRESSURE
CUTOUT SWITCH
LOWER ELECTRICAL
CONTROL BOX
REFRIGERATION
COOLING COIL ASSY
SCHREADER VALVE
*WATER FLOW RATE THROUGH COIL
VARIES DUE TO PRESSURE CHANGE
ON HIGH SIDE OF COMPRESSOR WHICH
INFLUENCES OPENING AND CLOSING
OF VARIABLE WATER REGULATOR.
ADJUST VARIABLE WATER REGULATOR
TO MAINTAIN 200 PSI REFRIGERATION
HIGH-SIDE PRESSURE
FIGURE 17. REFRIGERATION FLOW DIAGRAM (WATER-COOLED REFRIGERATION SYSTEM)

Table of Contents

Related product manuals