EasyManua.ls Logo

Emerson CW026 - Figure 4-5 Cabinet and Floor-Planning Dimensions, Downflow, CW089, CW106 and CW114 with EC Fans, Front Discharge

Emerson CW026
132 pages
Print Icon
To Next Page IconTo Next Page
To Next Page IconTo Next Page
To Previous Page IconTo Previous Page
To Previous Page IconTo Previous Page
Loading...
Dimensions
Liebert
®
CW
System Design Manual 28
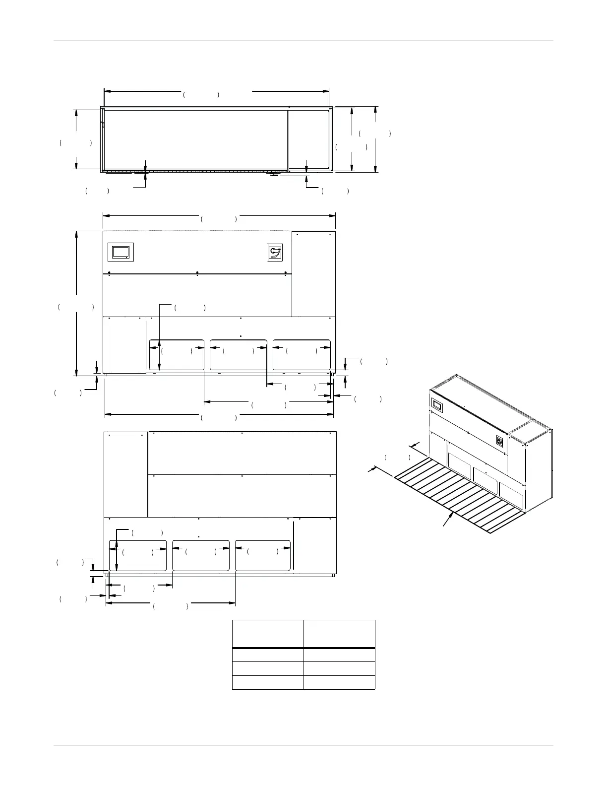
Figure 4-5 Cabinet and floor-planning dimensions, downflow,
CW089, CW106 and CW114 with EC fans, front discharge
Model
Dry Weight
lb (kg)
CW089 1925 (783)
CW106 1785 (810)
CW114 1925 (873)
118"
2997mm
Opening
30 3/4"
781mm
Opening
Striated area indicates the
recommended minimum
clearance to be provided
for component access.
36"
914mm
33"
838mm
35"
889mm
122"
3099mm
76"
1930mm
120"
3048mm
1 1/2"
37mm
3 1/8"
80mm
15 7/8"
403mm
TYP. (3) PLACES
30 1/8"
765mm
1 3/4"
45mm
29 7/8"
757mm
28 7/8"
732mm
1 3/4"
45mm
3 1/8"
80mm
15 7/8"
403mm
TYP. (3) PLACES
28 7/8"
732mm
29 7/8"
757mm
30 1/8"
765mm
Notes:
1. Filters are accessible from front of unit only.
2. Customer piping and wiring connections
a) Standard bottom connections require unit to
be placed on a minimum of a 9" floorstand.
b) If unit is to be placed directly on the
floor, additional unit modifications are
required to relocate customer connections.
Contact your local Liebert Sales Representative.
REAR VIEW
FRONT VIEW
TOP VIEW
AIR DISCHARGE
OPENING
AIR DISCHARGE
OPENING
AIR DISCHARGE
OPENING
AIR DISCHARGE
OPENING
AIR DISCHARGE
OPENING
AIR DISCHARGE
OPENING
RETURN AIR
OPENING
35"
889mm
67 7/8"
1725mm
35"
889mm
67 7/8"
1725mm
1 3/4"
44mm
Handle
5/16"
8mm
Bezel
DPN003224
Rev. 1

Table of Contents

Related product manuals