EasyManua.ls Logo

Epson TM-C3500 Series - Page 223

Epson TM-C3500 Series
240 pages
Print Icon
To Next Page IconTo Next Page
To Next Page IconTo Next Page
To Previous Page IconTo Previous Page
To Previous Page IconTo Previous Page
Loading...
Chapter 6 Appendix
223
5
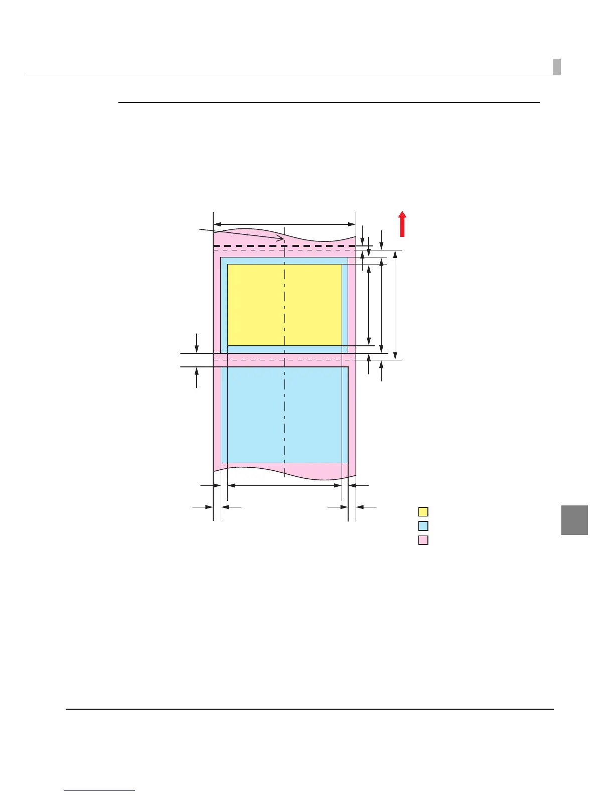
Die-cut label(Gap) / Roll paper
When "Borderless Printing" is disabled
Top, bottom, left, right margins: 1.5 mm (Typical value)
Paper width
1.5 mm
12.0 mm or more*1
18.0 mm or more*3
1.5 mm
1.5 mm
Auto-cut position
Auto-cut position
Paper feeding direction
Print area
2.0 mm
2.0 mm
1.5 mm
Label area
1.5 mm
1.5 mm
Interval
between labels:
3.0 mm {0.12"}
Center of paper width
Backing paper
Print area width
15.0 mm or more*2
0.5 to 1 mm
Perforated line
Outer edge (Removed)
Outer edge (Removed)
*1 When auto cut is not performed:
5.0 mm or more
*2 When auto cut is not performed:
8.0 mm or more
*3 When auto cut is not performed:
11.0 mm or more

Table of Contents

Other manuals for Epson TM-C3500 Series

Related product manuals