EasyManua.ls Logo

Fuji Electric Frenic-Mini - Page 171

Fuji Electric Frenic-Mini
366 pages
To Next Page IconTo Next Page
To Next Page IconTo Next Page
To Previous Page IconTo Previous Page
To Previous Page IconTo Previous Page
Loading...
8.4 Terminal Specifications
8-13
Chap. 8 SPECIFICATIONS
Classifi-
cation
Symbol Name Functions
Related
function
codes
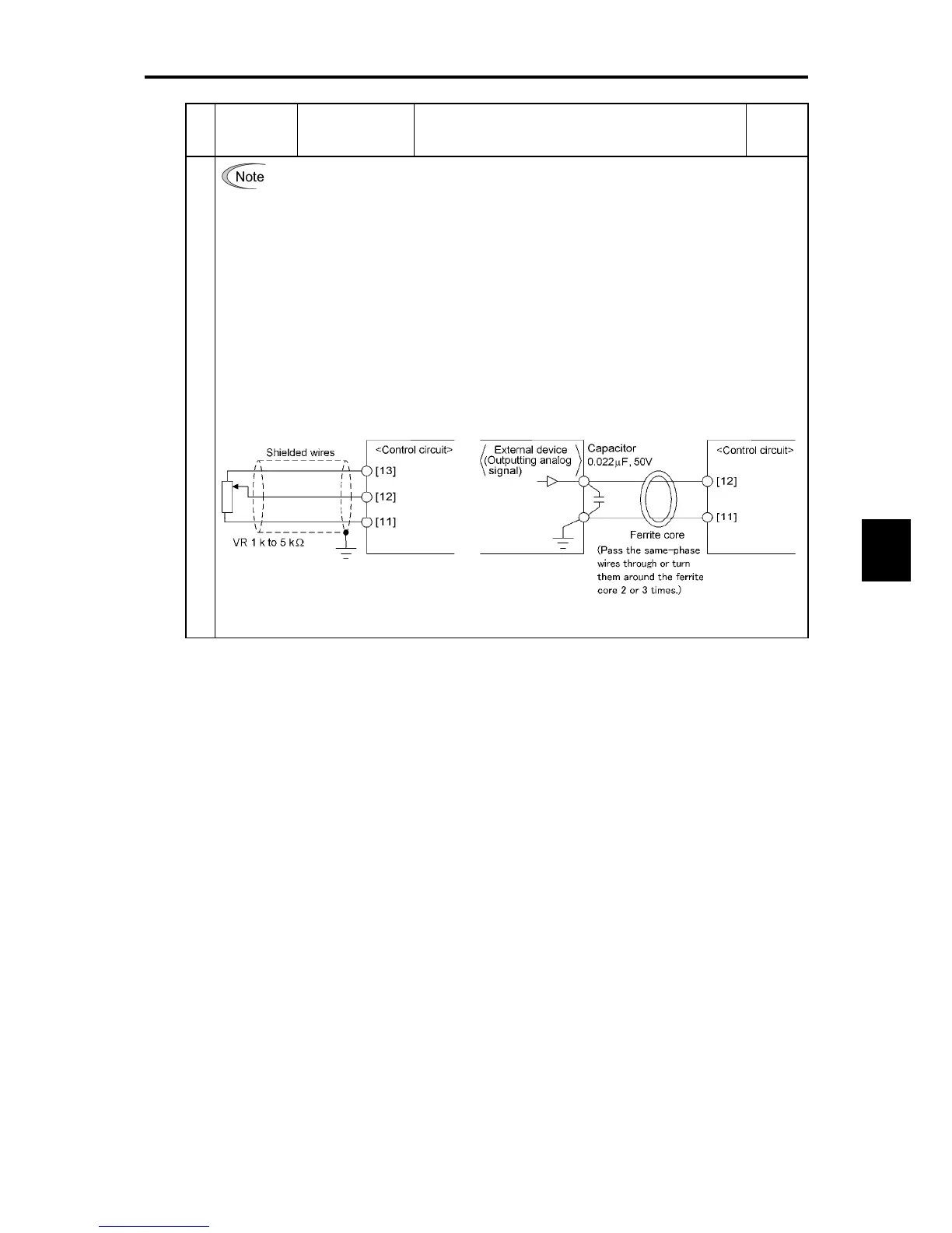
Since weak analog signals are handled, these signals are especially susceptible to the
external noise effects. Route the wiring as short as possible (within 20 m) and use
shielded wires. In principle, ground the shielding layer of the shielded wires; if effects
of external inductive noises are considerable, connection to terminal [11] may be
effective. As shown in Figure 8.1, ground the single end of the shield to enhance the
shielding effect.
Use a twin contact relay for weak signals if the relay is used in the control circuit. Do
not connect the relay's contact to terminal [11].
When the inverter is connected to an external device outputting the analog signal, a
malfunction may be caused by electric noise generated by the inverter. If this happens,
according to the circumstances, connect a ferrite core (a toroidal core or an equivalent)
to the device outputting the analog signal and/or connect a capacitor having the good
cut-off characteristics for high frequency between control signal wires as shown in
Figure 8.2.
Do not apply a voltage of +7.5 VDC or higher to terminal [C1]. Doing so could damage
the internal control circuit.
Analog input
Figure 8.1 Connection of Shielded Wire Figure 8.2 Example of Electric Noise Prevention

Table of Contents

Other manuals for Fuji Electric Frenic-Mini

Related product manuals