EasyManua.ls Logo

HDG Pelletmaster 15 - Page 43

Default Icon
172 pages
Print Icon
To Next Page IconTo Next Page
To Next Page IconTo Next Page
To Previous Page IconTo Previous Page
To Previous Page IconTo Previous Page
Loading...
4 Planning and installation – Connections
43
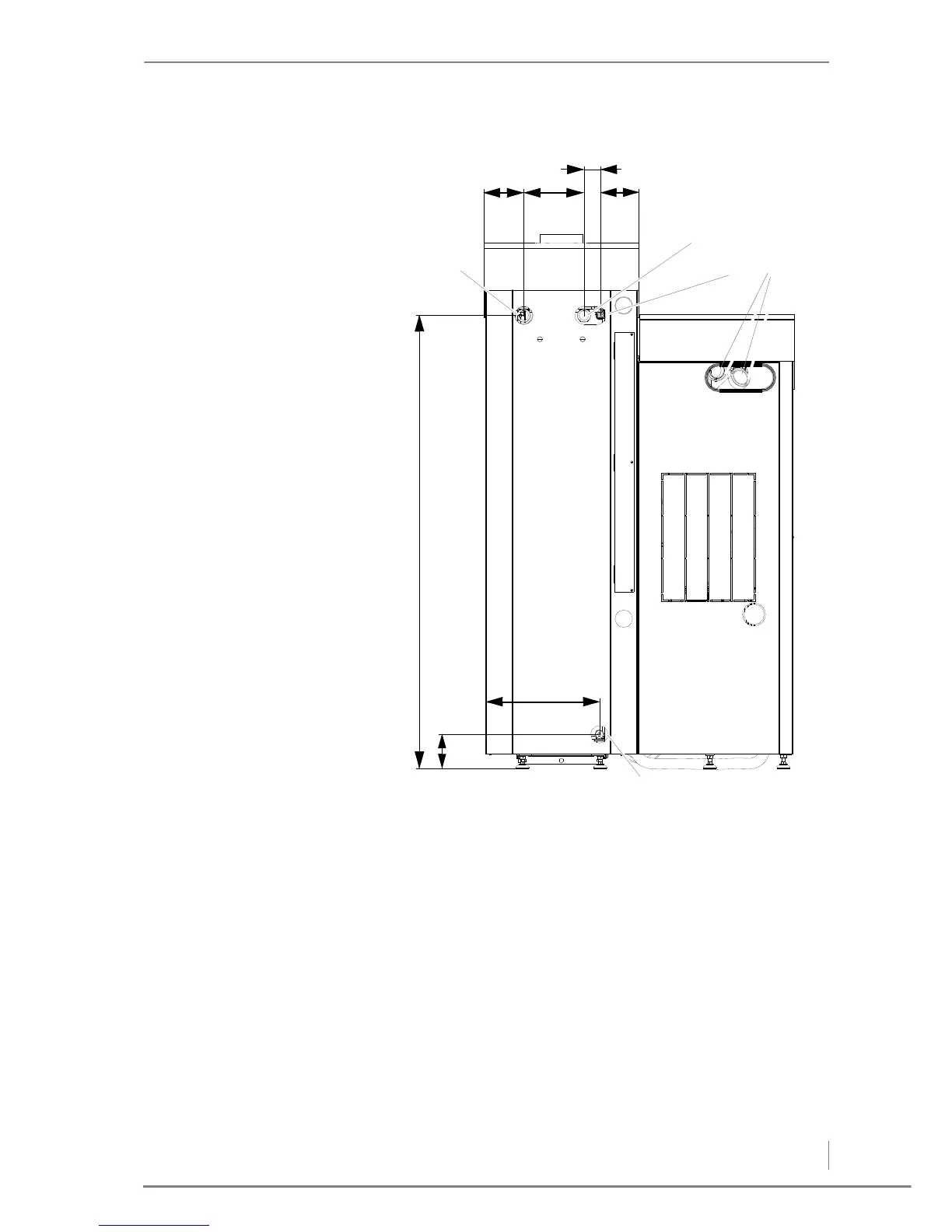
REAR VIEW
1 Boiler return connection 1" BSP (DN 25) internal thread
2 Boiler supply connection 1" BSP (DN 25) internal thread
3 Immersion sleeve for the supply temperature sensor / STB
4 Connection nozzles for suction turbine / pellet vacuum container
5 Connection for filling / emptying 1/2" BSP (DN 15)
A) 122 mm
B) 183 mm
C) 49 mm
D) 118 mm
E) 1378 mm
F) 347 mm
G) 104.5 mm
Figure 4/14 - HDG Pelletmaster Rear view
E
F
G
A
B
C
D
1
2
3
4
5

Table of Contents