EasyManua.ls Logo

HDG Pelletmaster 15 - Installation Dimension

Default Icon
172 pages
Print Icon
To Next Page IconTo Next Page
To Next Page IconTo Next Page
To Previous Page IconTo Previous Page
To Previous Page IconTo Previous Page
Loading...
4 Planning and installation – Connections
44
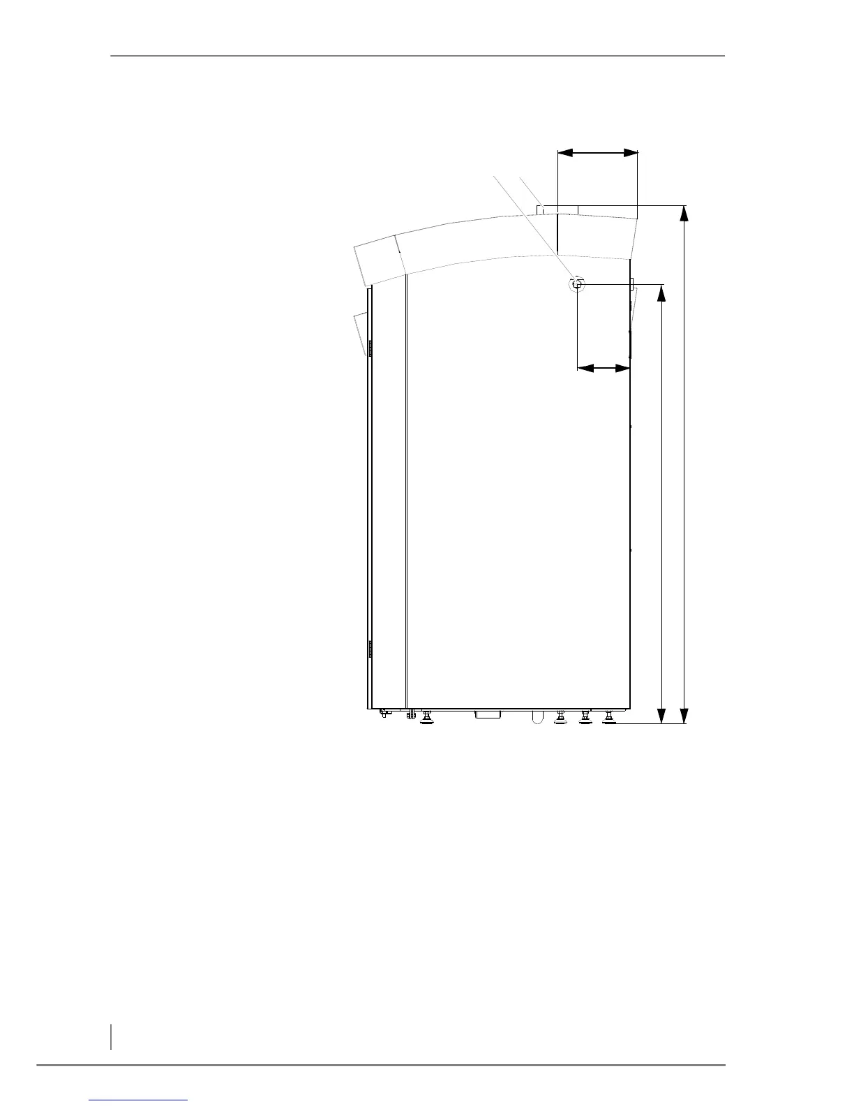
RIGHT SIDE VIEW
1 Immersion sleeve return temperature sensor
2 Flue pipe connection
A) 251 mm
B) 166 mm
C) 1625 mm
D) 1378 mm
INSTALLATION DIMENSION
Dimensions without cladding, as delivered.
370 mm x 790 mm x 1450 mm
Figure 4/15 - HDG Pelletmaster Right side view
A
B
C
D
12

Table of Contents