EasyManua.ls Logo

HDG Pelletmaster 15 - Page 83

Default Icon
172 pages
Print Icon
To Next Page IconTo Next Page
To Next Page IconTo Next Page
To Previous Page IconTo Previous Page
To Previous Page IconTo Previous Page
Loading...
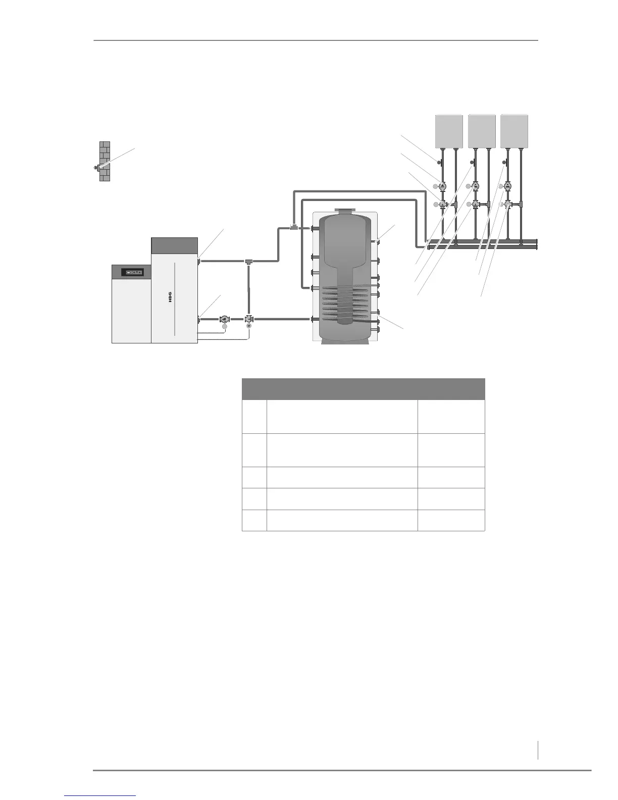
4 Planning and installation – HDG hydraulic systems
83
HYDRAULIC SYSTEM 2
Figure 4/75 - Hydraulic system 2
Pelletmaster
M
M
M
M
M
M
M
Bt
Bb
RT
ST
OT
A3
F9
A9/10
A5
F5
A1/2
A4
F4
A7/8
CCT1 CCT2 CCT3
HDG Pelletronic Connection
OT
S
Outdoor temperature sensor 40 / 41
ST Supply temperature sensor
(boiler temperature)
48 / 49
RT Return temperature sensor 46 / 47
Bt Buffer top sensor 44 / 45
Bb Buffer bottom sensor 42 / 43

Table of Contents