EasyManua.ls Logo

HDG Pelletmaster 15 - Page 97

Default Icon
172 pages
Print Icon
To Next Page IconTo Next Page
To Next Page IconTo Next Page
To Previous Page IconTo Previous Page
To Previous Page IconTo Previous Page
Loading...
97
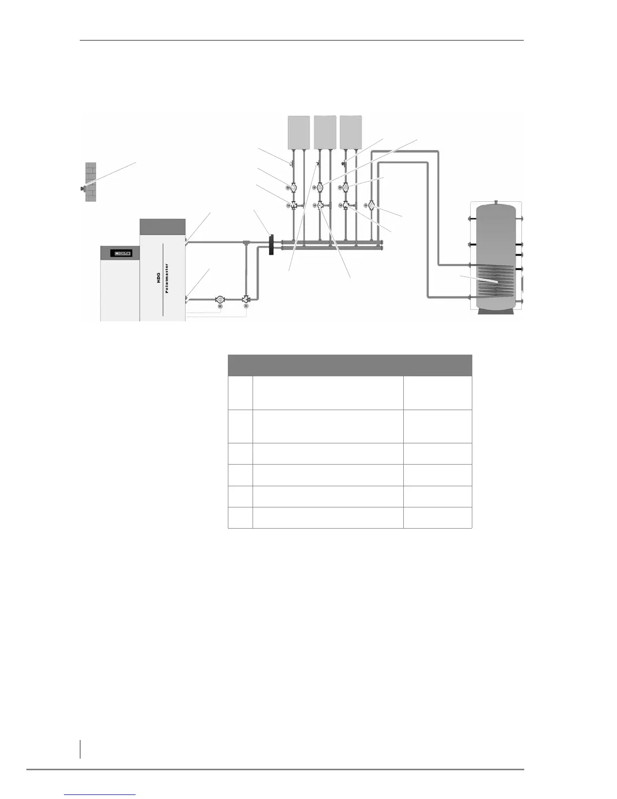
HYDRAULIC SYSTEM 8
Figure 4/82 - Hydraulic system 8
RT
ST
OT
F4
A7/8
F2
A4
A3
CCT1 CCT2 CCT3
F9
A1/2
X
A6
A5
F5
A9/10
HDG Pelletronic Connection
OT
S
Outdoor temperature sensor 40 / 41
ST Supply temperature sensor
(boiler temperature)
48 / 49
RT Return temperature sensor 46 / 47
Bt not assigned
Bb not assigned
X Hydraulic switch

Table of Contents