EasyManua.ls Logo

Inovance MD500

Inovance MD500
184 pages
To Next Page IconTo Next Page
To Next Page IconTo Next Page
To Previous Page IconTo Previous Page
To Previous Page IconTo Previous Page
Loading...
1 Product Information
-
13
-
1
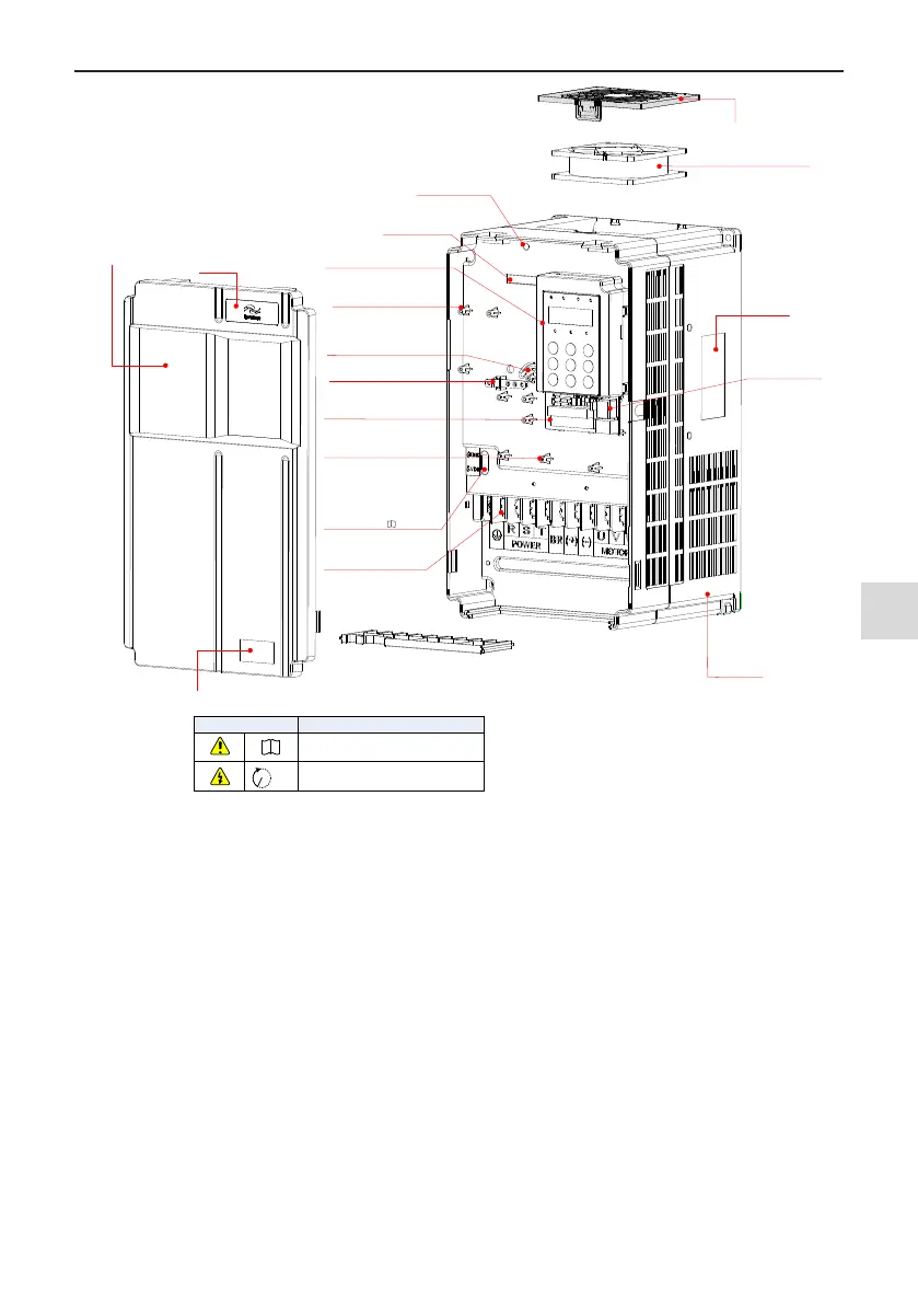
Live indicator
Do not remove/install the drive
when this indicator is lighting
Cooling fan
For replacement,
see section 7.3
Housing
Cable support bracket
Main circuit terminals and
grounding terminals
See section 3.2.2
EMC and VDR screw
Refer to Power Grid System in
section 3.2.2 and requirement on
current leakage in A.6 in MD500
Series General-Purpose AC
Drive User Manual
Front cover
For removal of the front
cover, see section 3.1.5
Logo
Control circuit terminals
See section 3.2.4
Ground bar
Ground the PG card and control
board
Fixing pin of extension card
See Appendix A: Optional Cards
Fix pin of extension encoder
card
See Appendix A Optional Cards
Operating panel, See section 4.2
Cabling tray and fixing pin of
ground cable of control board
Note: This ground cable can only be
connected to the ground bar after
the system is grounded reliably.
Barcode
View the serial number and
model of the drive here.
Fan cover
Warning label
Nameplate
See section 1.1
Description
i
10min
CAUTION! Read the user guide of the AC drive
carefully before installation or operation.
Warning label
DANGER! Do not remove the front cover while the
power is on or within10 minutes after the power is
turned off.
Interface of external
operating panel
See section 4.3
Figure 1-3 Schematic diagram of product parts (three-phase, 380V - 480V, MD500T18.5G(B) to MD500T-
37G(B))

Table of Contents

Related product manuals