EasyManua.ls Logo

Inovance MD500

Inovance MD500
184 pages
To Next Page IconTo Next Page
To Next Page IconTo Next Page
To Previous Page IconTo Previous Page
To Previous Page IconTo Previous Page
Loading...
1 Product Information
-
14
-
1
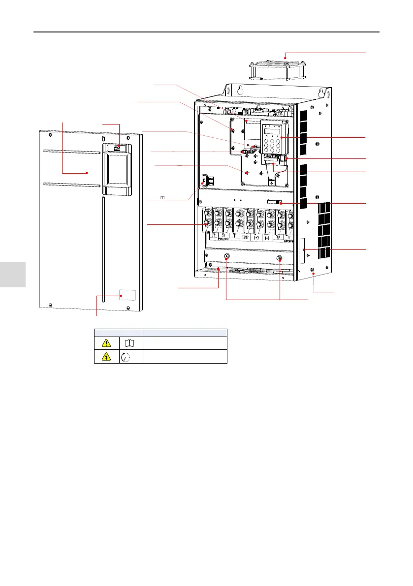
Front cover
For removal of the front
cover, see section 3.1.5
Logo
Cooling fan
For replacement,
see section 7.3
Nameplate
See section 1.1
Grounding
terminal
See section 3.2.2
Main circuit terminals
See section 3.2.2
Cable gland hole
Cable clamp
Fix signal cables
Housing
Fixing pin of extension card
See Appendix A Optional Cards
Ground bar
Ground the PG card and
control board
Cabling tray and fixing pin of
ground cable of control board
Note: This ground cable can only be
connected to the ground bar after
the system is grounded reliably.
Fix pin of extension
encoder card
See Appendix A Optional Cards
Barcode
View the serial
number and model
of the drive here.
Control circuit
terminals
See section 3.2.4
Operating panel
See section 4.2
Warning label
Description
i
10min
CAUTION! Read the user guide of the AC drive
carefully before installation or operation.
Warning label
Interface of external
operating panel
See section 4.3
EMC and VDR screw
Refer to Power Grid System in
section 3.2.2 and requirement
on current leakage in A.6 in
MD500 Series General-
Purpose AC Drive User
Manual
DANGER! Do not remove the front cover while the
power is on or within10 minutes after the power is
turned off.
Figure 1-4 Schematic diagram of product parts (three-phase, 380V - 480V, MD500T45G(B) to MD500T160G)

Table of Contents

Related product manuals