EasyManua.ls Logo

Inovance MD500

Inovance MD500
184 pages
To Next Page IconTo Next Page
To Next Page IconTo Next Page
To Previous Page IconTo Previous Page
To Previous Page IconTo Previous Page
Loading...
1 Product Information
-
15
-
1
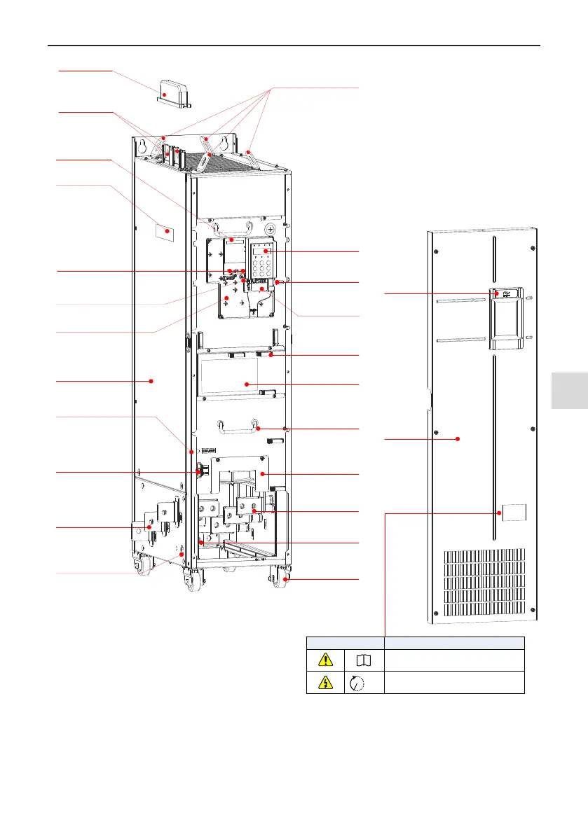
LOGO
Warning label
DC bus terminals
Cable clamp
Castor
Housing
Bottom hoist hole
Main circuit input
terminals
See section 3.2.2
Top hoist rings
Protective cover of
DC bus terminals
Nameplate
Handle
Label of main
circuit wiring
Description
i
10min
CAUTION! Read the user guide of the AC drive
carefully before installation or operation.
Warning label
Fan box
For replacement of fan,
see section 7.3
Control circuit
terminals
See section 3.2.4
Grounding terminal
section 3.2.2
Live indicator
Do not remove/install the drive
when this indicator is lighting
EMC and VDR screw
Refer to Power Grid
System in section 3.2.2 and
requirement on current
leakage in A.6 in MD500
Series General-Purpose
AC Drive User Manual
Ground bar
Ground the PG card and
control board
Fixing pin of extension
card
See Appendix A Optional
Cards
Operating panel
See section 4.2
Cabling tray and fixing
pin of ground cable of
control board
This ground cable can only
be connected to the ground
bar after the system is
grounded reliably.
Interface of external
operating panel
See section 4.3
Barcode
View the serial
number and model of
the drive here.
Front cover
For replacement,
see 3.1.5
DANGER! Do not remove the front cover while the
power is on or within10 minutes after the power is
turned off.
Main circuit output
terminals
See section 3.2.2
Figure 1-5 Schematic diagram of product parts (three-phase, 380V - 480V, MD500T200G to MD500T450G)

Table of Contents

Related product manuals