EasyManua.ls Logo

Inovance MD500

Inovance MD500
184 pages
To Next Page IconTo Next Page
To Next Page IconTo Next Page
To Previous Page IconTo Previous Page
To Previous Page IconTo Previous Page
Loading...
3 Installation and Wiring
-
39
-
3
3.2 Wiring
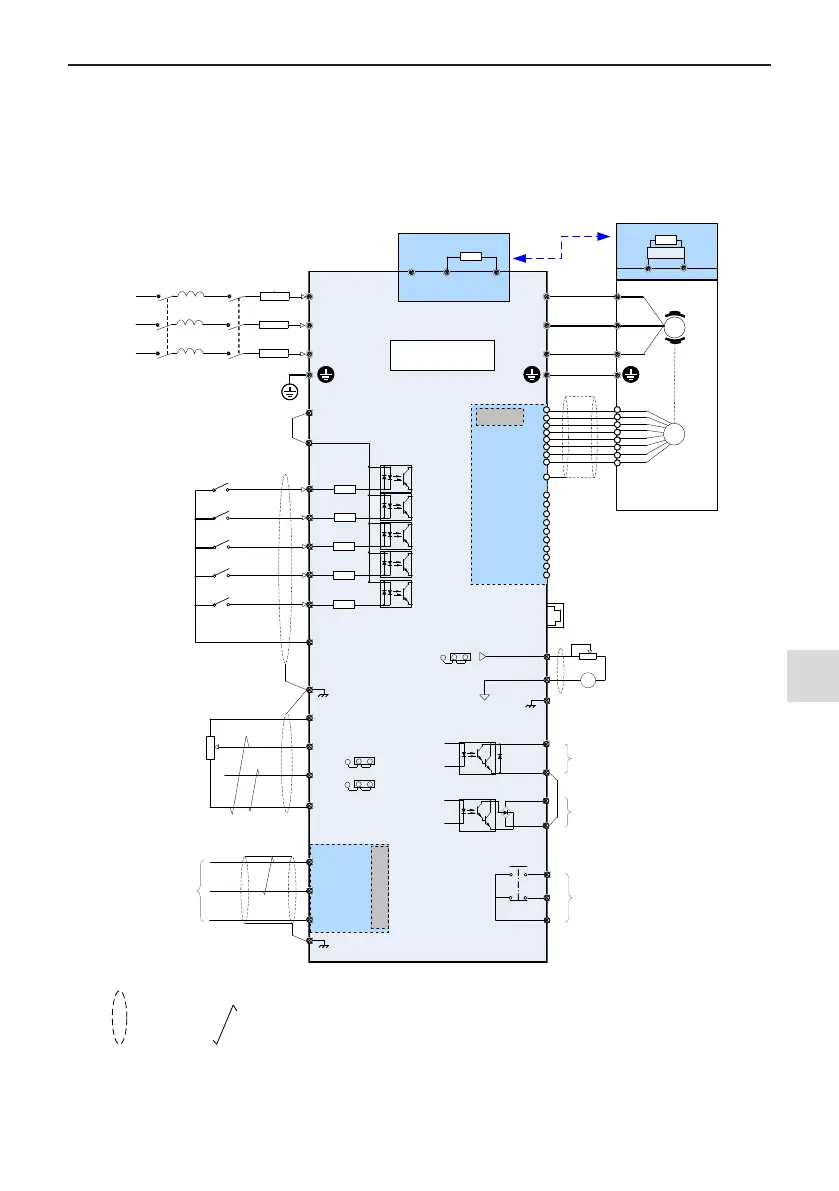
3.2.1 Standard Wiring Diagram
As shown in the following gure, the wiring part at the 0.4kW~75kW marked by double-headed arrow in 0.4 to
75 kW and 90 to 450 kW models is different.
R
S
T
U
V
W
+24V
OP
DI1
DI2
DI3
DI4
DI5
COM
+10V
AI2
GND
485-
485+
GND
AI1
T/C
T/B
T/A
FM
COM
DO1
CME
AO1
GND
L
1
L2
L3
M
AM
-
+
BR
- +
Jumper J7
Jumper J9
Forward run/stop
(F4-00 = 1)
(F4-01 = 4)
(F4-02 = 9)
(F4-
03 = 12)
(F4-04 = 13)
1~5 kΩ
0~10 V
0~20
mA
Modbus-RTU
Grounding terminal
Grounding terminal
V138TX1
(Optional)
J13
Function
extension card
0 V
J11
RJ45
Interface of external
operating panel
0.
4 kW to 75 kW Drive
90 kW to 450
kW Drive
AO 1: 0~10V/0~20mA
Pulse
sequence output: 0~100kHz
Open-collector 1: 0~24Vdc/0~50mA
Relay output:
250Vac 10 mA to 3A
30Vdc 10 mA to 1A
Fuse
Contactor
Breaker
Forward jog
Fault reset
Multi-
reference 1
Multi-reference 2
Max. Pulse 100 kHz
Default value:
Operating frequency
0~10V F5-07=0
Default value:
Frequency setting 0~50kHzF5-
00=0F5-06=0
Default value:
When the drive is running, F5-04=1
Default value:
Drive fault, F5-02=2
J4
PG extension
card
A+
A-
B+
+5V
COM
Dividing frequency
output
P
G
PE
V
138PGMD
(Optional)
B-
Z+
Z-
OA+
OA-
OB+
OB-
OZ+
OZ-
OA
OB
OZ
GND
Jumper J10
I
V
250Ω
500Ω
Breaking unit
I
V
MD
500
Max. rate 115200bps
Breaking resistor
Breaking resistor
Note:
——
shield
;
——
twisted pair
Figure 3-26 Wiring diagram of a typical three-phase 380 to 480 V drive

Table of Contents

Related product manuals