EasyManua.ls Logo

Inovance MD500

Inovance MD500
184 pages
To Next Page IconTo Next Page
To Next Page IconTo Next Page
To Previous Page IconTo Previous Page
To Previous Page IconTo Previous Page
Loading...
3 Installation and Wiring
-
27
-
3
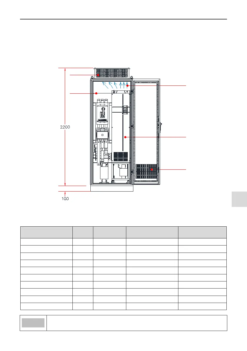
3.1.4 Mounting in Cabinet
1. Ventilation
Only one drive of models MD500T200G to MD500T450G can be mounted in a cabinet. Ventilation space must
be considered when mounting drives of MD500T200G to MD500T450G in the cabinet. Follow the following
guidance for specic model and application scenarios.
Direct discharging cabinet (without fan on the top)
Insulation
barrier
Cabinet ventilation
top cover
Air inlet of front
door
Ventilation airflow
MD500 (450 kW)
Figure 3-11 Direct discharging cabinet
Table 3-2 Specication of direct discharging cabinet
MD500 Model
Quantity
of Fans
Total Air Volume
(CFM)
Effective Area of Cabinet
Top Air Inlet (mm
2
)
Effective Area of Cabinet
Top Air Outlet (mm
2
)
MD500T132G 2 541 31809 50894
MD500T160G 2 620 31809 50894
MD500T200G(-L) 2 586 31809 50894
MD500T220G(-L) 2 722 31809 50894
MD500T250G(-L) 3 789 47713 76341
MD500T280G(-L) 3 882 47713 76341
MD500T315G(-L) 3 644 47713 76341
MD500T355G(-L) 3 796 47713 76341
MD500T400G(-L) 3 796 47713 76341
MD500T450G(-L) 3 796 47713 76341
Note
CFM = 0.0283 m
3
/min
Effective area means through-hole area.

Table of Contents

Related product manuals