EasyManua.ls Logo

Inovance MD500

Inovance MD500
184 pages
To Next Page IconTo Next Page
To Next Page IconTo Next Page
To Previous Page IconTo Previous Page
To Previous Page IconTo Previous Page
Loading...
3 Installation and Wiring
-
28
-
3
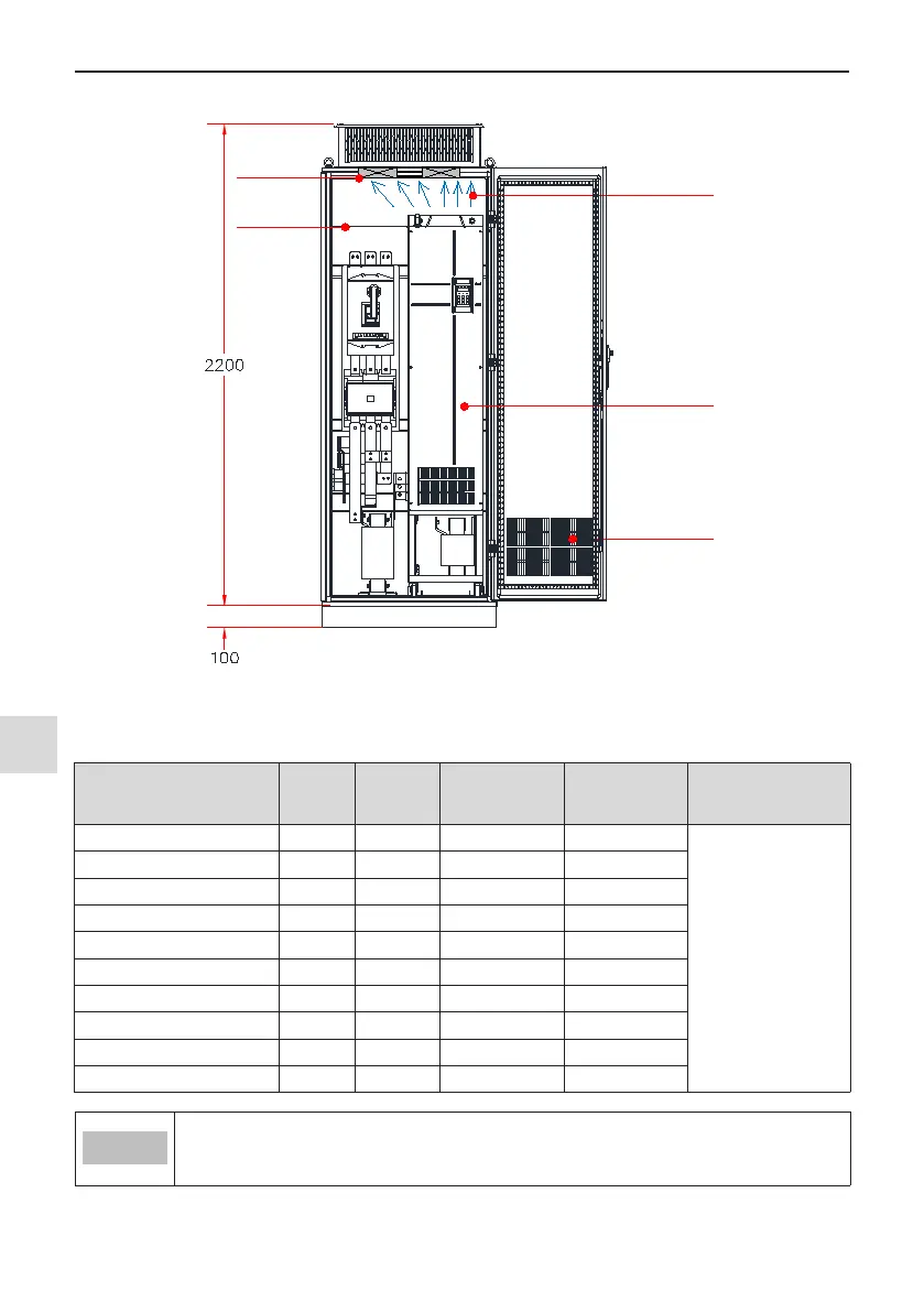
Cabinet with fan on the top
Air inlet of front
door
Insulation
barrier
Ventilation airflow
Cooling fan
MD500 (450 kW)
Figure 3-12 Cabinet with fan on the top
Table 3-3 Specication of cabinet with fan on the top
MD500 Model
Quantity
of Fans
Total Air
Volume
(CFM)
Effective Area of
Cabinet Top Air
Inlet (mm
2
)
Max. Air Volume
Required by the
Top Fan (CFM)
Effective Area of
Cabinet Top Air Outlet
(mm
2
)
MD500T132G 2 541 31809 649
S
0.942 × N × (Dout2-
DHUB2)
In the preceding formula,
N means the quantity of
top fans, Dout means
diameter of the top
fan, and DHUB means
diameter of the top fan
center HUB.
MD500T160G 2 620 31809 744
MD500T200G(-L) 2 586 31809 703
MD500T220G(-L) 2 722 31809 866
MD500T250G(-L) 3 789 47713 947
MD500T280G(-L) 3 882 47713 1058
MD500T315G(-L) 3 644 47713 773
MD500T355G(-L) 3 796 47713 955
MD500T400G(-L) 3 796 47713 955
MD500T450G(-L) 3 796 47713 955
Note
CFM = 0.0283 m
3
/min
Effective area means through-hole area.

Table of Contents

Related product manuals