EasyManua.ls Logo

Kidde ARIES - Page 276

Kidde ARIES
282 pages
Print Icon
To Next Page IconTo Next Page
To Next Page IconTo Next Page
To Previous Page IconTo Previous Page
To Previous Page IconTo Previous Page
Loading...
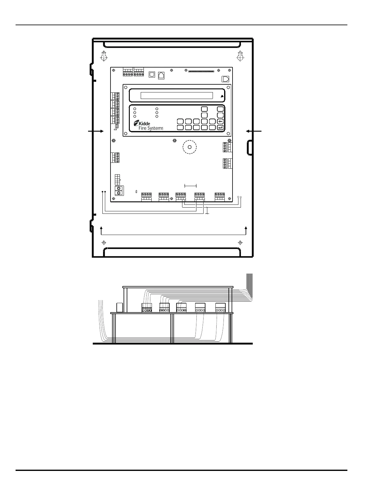
Routings for Power-Limited and Non-Power-Limited Wiring
August 2013 E-2 P/N 06-236530-001
Figure E-1. Power-Limited and Non-Power-Limited Wiring
Combo 2
TB6TB7
Combo 1
TB2
Aux 24 VDC
TB11
Release 2
TB12
Release 1
Batt Out
TB3
TroubleRelay 3Relay 1 Relay 2
1234 1234
1234
12 34 1 2 34
120
240
TB13
AC IN
NL
PSU
J12
+
+
--
CNCNO
CNCNO
CNCNOCNCNO
1234
TB5
NAC 1
TB14
1234
NAC 2
RS-232 A
J8
J5
TB15
USB B
RS 485SLC
TB1
4321 4321
Style 4
S2
J10
J3
RS-232 B
TB4 TB8 TB9 TB10
Use left-side gutter for non-
power-limited wiring.
Use right-side gutter for power-
limited wiring.
A-A
Maintain 1/4-in. separation as shown between power-
limited and non-power-limited wiring in this area.
1/4-in. (min.)
1/4-in. (min.)
Non-power-limited wiring
Power-limited wiring
Note:
Route wiring as shown when combination power-limited and non-power-limited circuits are used.
Direct all non-power-limited wiring to the rear and then to the left-hand side of the enclosure. Tie wrap this wiring to the
back of the enclosure to maintain a minimum 1/4-inch separation from all power-limited wiring.
Direct all power-limited wiring outward and then to the right-hand side of the enclosure. Also tie wrap this wiring as
necessary to maintain a minimum 1/4-inch separation from all non-power-limited wiring.
A-A
Non-power-limited
wiring
Power-limited wiring
AC POWER
ALARM
PRE-ALARM
SYSTEM TROUBLE
SUPERVISORY
SILENCE
SYSTEM
ACKNOWLEDGE
SYSTEM
RESET
SILENCE
SCROLL
12345
67890

Table of Contents

Related product manuals