EasyManua.ls Logo

Kidde ARIES - SMARTONE DETECTORS

Kidde ARIES
282 pages
Print Icon
To Next Page IconTo Next Page
To Next Page IconTo Next Page
To Previous Page IconTo Previous Page
To Previous Page IconTo Previous Page
Loading...
August 2013 1-10 P/N 06-236530-001
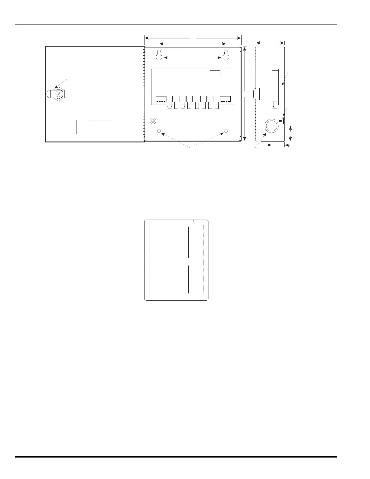
Figure 1-10. Fiber Optic Converter Card
1-3.6 Trim Ring
A trim ring (Figure 1-11) is available to semi-flush mount the control unit.
Figure 1-11. Trim Ring
1-4 SMARTONE DETECTORS
The ARIES uses the SmartOne™ Series of intelligent smoke and heat detectors. These detectors
have their own data transceivers, micro-controllers, micro-controller memory, and algorithms
that allow the detectors to determine whether a normal, pre-alarm, alarm, or trouble condition
exists at their monitoring locations. Each detector continuously transmits its current status to
the ARIES through the signaling line circuit, and responds to control unit polling and inquiries by
the address that is set in the detector using the Handheld Programmer, P/N 74-200013-001, or
using the ARIES’s display. The pre-alarm and alarm thresholds are programmable for each
detector.
A blinking LED on an intelligent detector indicates communications between the detector and
the control unit.
MODEL: OCC
KIDDE-FENWAL, INC.
400 MAIN STREET,ASHLAND, MA 01721
TEL: (508) 881-2000 FAX: (508) 881-8920
R
Module
Side View
Front View with Door Open
Latch
Ground
Lug
8"
5-1/2"
8"
2-9/32"
9/32" Diameter
9/32" Diameter
½" & ¾"
Knockout (2)
1-1/4"
1-1/16"
B2N B2I
TB1 TB2
RxN
A2N A2I
B1N B1IA1N A1I
TxN RxI
Q1 D1 Q2 D3
TxI RxN TxN RxI TxI
Q3 D5 Q4 D7
24V
+-+-
19-5/16 in.
14-9/16 in.
1-1/2 in.
All Around

Table of Contents

Related product manuals