EasyManua.ls Logo

Kidde ARIES - Power-Supply;Battery-Charger Assembly

Kidde ARIES
282 pages
Print Icon
To Next Page IconTo Next Page
To Next Page IconTo Next Page
To Previous Page IconTo Previous Page
To Previous Page IconTo Previous Page
Loading...
August 2013 1-6 P/N 06-236530-001
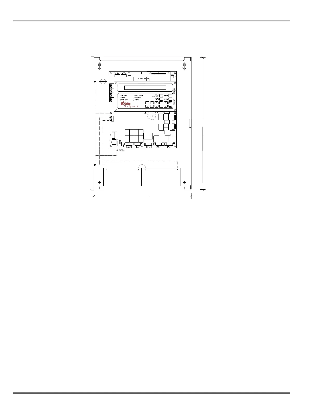
1-2.3 ARIES Cabinet
The PCB mounts in a compact (19.50” x 14.25” x 5.00”) cabinet. The cabinet is key
locked, and provides space for two batteries (up to 12 AH).
Figure 1-4. ARIES Cabinet
1-2.4 Power-Supply/Battery-Charger Assembly
The power-supply/battery-charger assembly is an AC to DC switching power-supply unit
that provides a total output of 5.4 A @ 27 Vdc. The power supply unit is user configurable
for either 120 Vac or 220/240 Vac, 50/60 Hz line voltage and its DC output is both filtered
and regulated. The power supply/battery-charger assembly can charge standby batteries
of up to 70 AH capacity.
The power-supply/battery-charger assembly is packaged separately and shipped inside
the control unit’s enclosure. Figure 1-5 shows the placement of the power-
supply/battery-charger assembly in the ARIES’s back box.
12-V Battery (12 AH)
12-V Battery (12 AH)
14-1/4 in.
19-1/2 in.

Table of Contents

Related product manuals