EasyManua.ls Logo

Kidde ARIES - Intelligent Interface Module

Kidde ARIES
282 pages
Print Icon
To Next Page IconTo Next Page
To Next Page IconTo Next Page
To Previous Page IconTo Previous Page
To Previous Page IconTo Previous Page
Loading...
P/N 06-236530-001 2-39 August 2013
2-19 INTELLIGENT INTERFACE MODULE
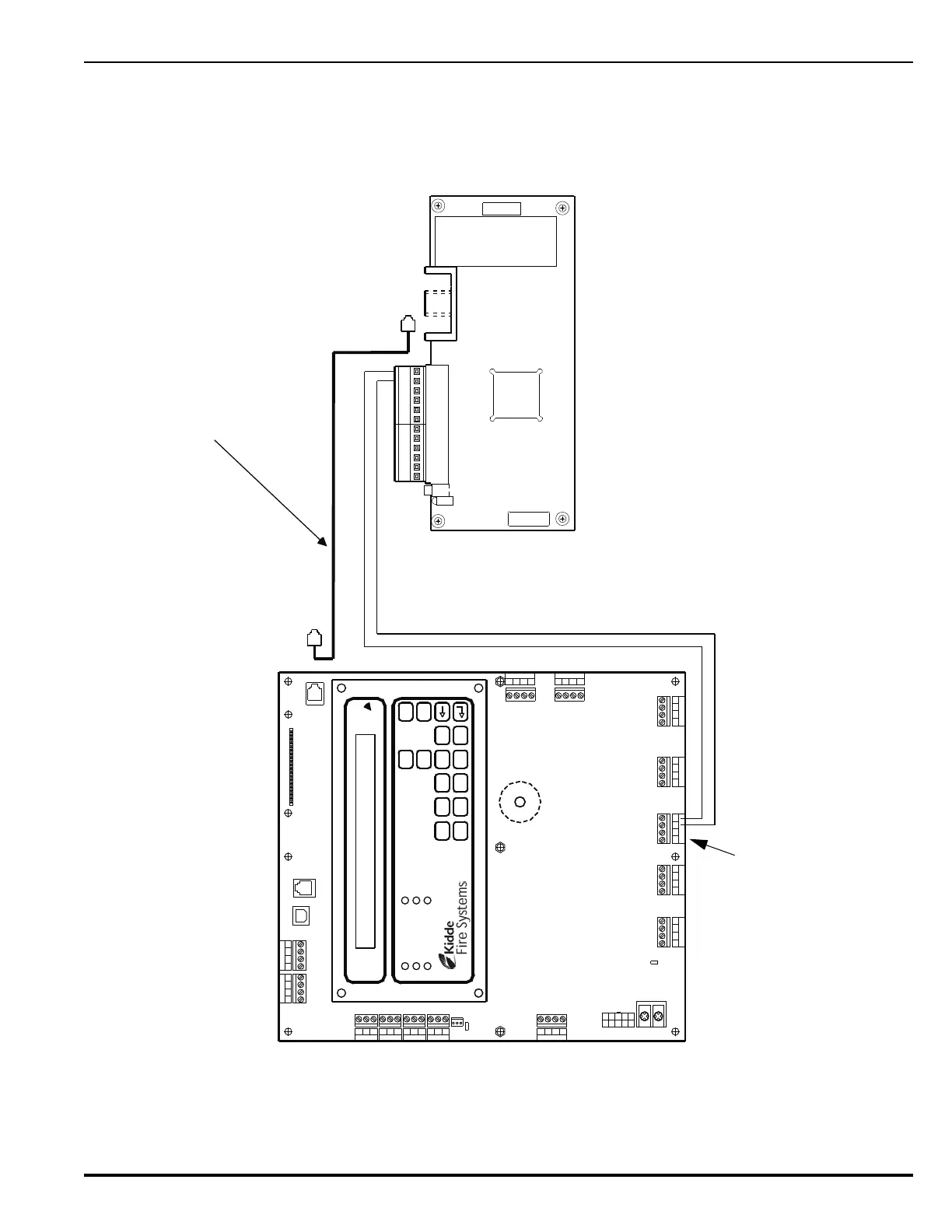
The interconnection of the Intelligent Interface Module to the ARIES Control Unit is shown in
Figure 2-40. Refer to the ORION-XT Installation, Operation and Maintenance Manual
(Publication 77.100) for additional details.
Figure 2-40. Interconnection of IIM
Combo 2
TB6TB7
Combo 1
TB2
Aux 24 VDC
TB11
Release 2
TB12
Release 1
Batt Out
TB3
TroubleRelay 3Relay 1 Relay 2
1234 1234
1234
1234 1234
120
240
TB13
AC IN
NL
PSU
J12
+
+
--
CNCNO
CNCNO
CNCNOCNCNO
1234
TB5
NAC 1
TB14
1234
NAC 2
RS-232 A
J8
J5
TB15
USB B
RS 485SLC
TB1
4321
4321
Style 4
S2
J10
J3
RS-232 B
TB4 TB8 TB9 TB10
CCM PC TEL
123456
7
89101112
RS-232 Communications Cable
Connect from IIM Port labeled "CCM"
to control-unit port J8 (RS-232 A).
Configure Port J8 for operation with IIM.
Refer to Paragraph 3-2.5.2.4.5
Control-Unit PCB
IIM PCB
AC POWER
ALARM
PRE-ALARM
SYSTEM TROUBLE
SUPERVISORY
SILENCE
SYSTEM
ACKNOWLEDGE
SYSTEM
RESET
SILENCE
SCROLL
1 2 3 4 5
6 7 8 9 0
Auxiliary Power Terminals
(Non re-settable)

Table of Contents

Related product manuals