EasyManua.ls Logo

KOB PYROT - Page 35

KOB PYROT
96 pages
Print Icon
To Next Page IconTo Next Page
To Next Page IconTo Next Page
To Previous Page IconTo Previous Page
To Previous Page IconTo Previous Page
Loading...
34,05 mm
7,69 mm
14,70 mm
23,34 mm10,05 mm2,19 mm
29,93 mm
47,92 mm
c
g
d
e
f
a
b
< 200
D
C
B
16,68 mm
14,12 mm
6,02 mm
10,57 mm
14,12 mm8,26 mm
8,86 mm
31,22 mm
4,07 mm
21,70 mm
820
r
p
r
820
n
m
l
< 200
h
q
k
25,44 mm
29,45 mm
28,23 mm
820
750
d
90 l
28,23 mm
28,23 mm
820
820
A
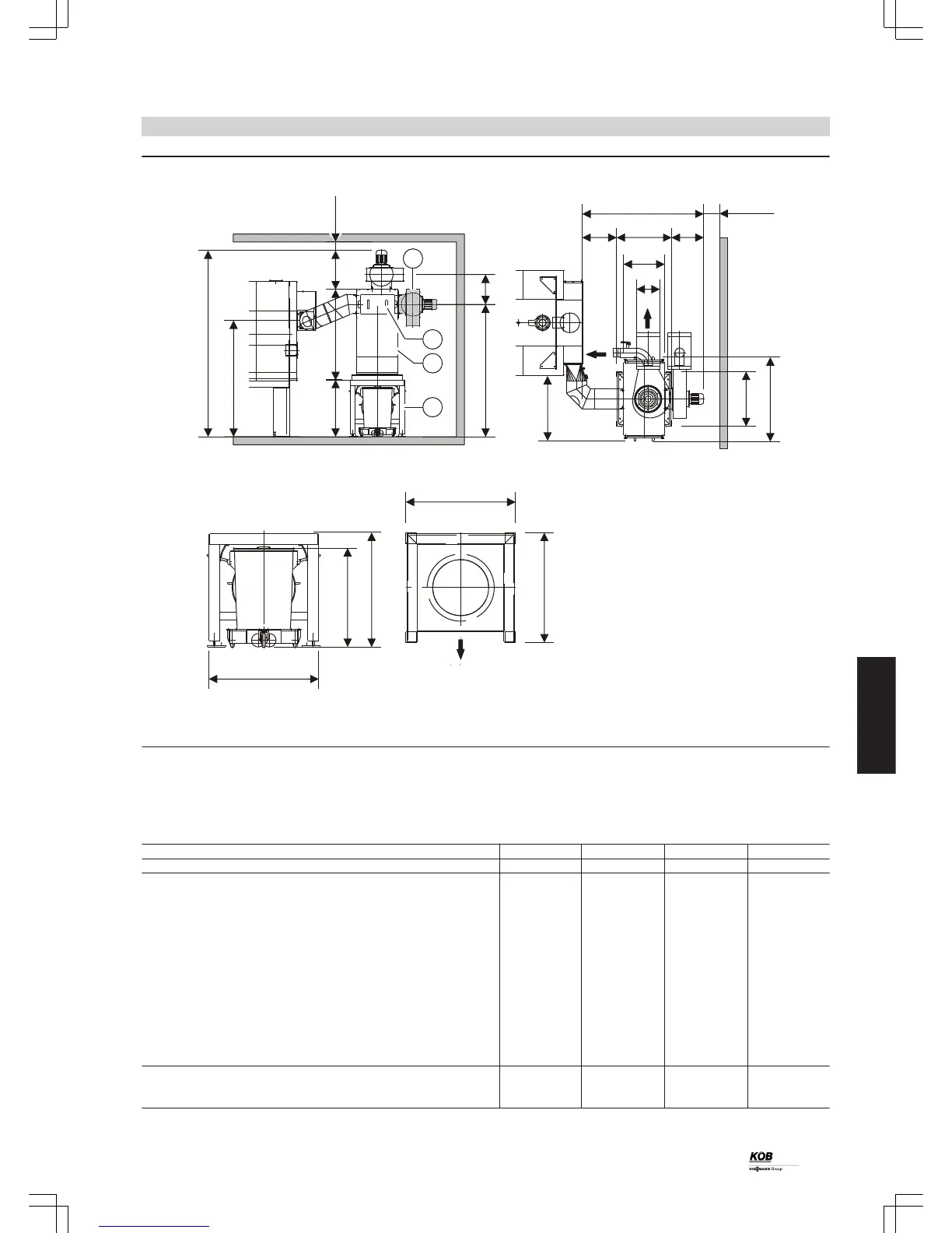
Positioning in 4x 90° possible (removal, ash container)
A
Flue gas fan (with variable rotation)
Either top or side
Unused connection as cleaning cover, clean gas space
B
Cleaning cover (raw gas space)
C
Dust extractor (axial cyclone)
D
Ash station
k Recirculation gas to boiler
q Flue gas to chimney
Dimensions
Rated output kW 100 and 150 220 and 300 400 540
Part no. 7423 662 7423 663 7423 664 7423 665
Dimensions
a mm 1521 1628 1671 1741
b mm 2285 2552 2702 2776
c mm 1518 1775 1875 1949
d mm 846 846 846 920
e mm 899 1156 1256 1256
f mm 540 550 600 600
g mm 430 424 447 447
h mm 545 530 977 977
l mm 1640 1440 1790 1790
m mm 414 414 480 480
n mm 280 370 370 370
o mm 614 614 620 620
r mm 780 780 1260 1260
Weight
Weight with flue gas fan kg 295 315 350 350
Weight without flue gas fan kg 258 270 310 288
Installation accessories
(cont.)
PYROT
35
5822 516 GB
5

Table of Contents