EasyManua.ls Logo

KOB PYROT - 6.20 Back burning protection; Rotary lock valve

KOB PYROT
96 pages
Print Icon
To Next Page IconTo Next Page
To Next Page IconTo Next Page
To Previous Page IconTo Previous Page
To Previous Page IconTo Previous Page
Loading...
8,72°
> 10°
100,13°
100°
2,58 mm
1,54 mm
10,19 mm
1300
350
200
9,59 mm
< 800
12,36 mm
59,18 mm
13,51 mm
2,31 mm
AA
22,06 mm
< 1500
> 10000
< 1500
2860
ø300
A-A
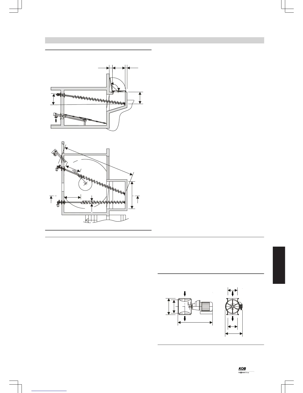
6.20 Back burning protection
Rotary lock valve
Rotary lock valve for fire protected separation of combustion system
and fuel store with overpressure or underpressure, and with simulta-
neous material transportation for installation in a drop section. The
rotary valve is made entirely from steel and is permissible as a fire
protection between the combustion system and woodchip silos in
wood processing operations with overpressure or underpressure. The
drive device is a spur geared motor with sprung torque support. If the
woodchips are extremely coarse, briefly running the system in reverse
avoids jamming.
Fire protection: RSE according to TRVB and VKF
Max. permissible overpressure in the fuel store: + 500 Pa
Max. permissible underpressure in the fuel store: ± 0 Pa
Standard delivery:
Rotary lock valve according to order data
Control of spur geared motor for both rotational directions according
to boiler control unit
Positioning:
Directly above the supply screw conveyor
Exception for funnel discharge: directly at the casing
Note
Rotary lock valve 190 for supply system D 120 mm.
Rotary lock valve 260 for supply system D 150 mm and D 190 mm.
10,67 mm
13,24 mm
27,93 mm
7,86 mm
7,86 mm
14,00 mm
d
e
f
c
øb
a
Design information
(cont.)
PYROT
87
5822 516 GB
6

Table of Contents