EasyManua.ls Logo

KOB PYROT - Safety precautions; Minimum clearances

KOB PYROT
96 pages
Print Icon
To Next Page IconTo Next Page
To Next Page IconTo Next Page
To Previous Page IconTo Previous Page
To Previous Page IconTo Previous Page
Loading...
A
Σ²
n
= total of all rated outputs in kW
Never close or obstruct combustion air apertures and lines. Use spe-
cial safety equipment to ensure that the combustion equipment can
only be operated when the aperture is open.
The required cross-section must not be blocked by any closure or
grille.
Safety precautions
For gas combustion equipment, fuel lines must be equipped with the
following safety equipment immediately upstream of the gas combus-
tion equipment:
The fuel supply must automatically shut off in case of an external
thermal load in excess of 100 ºC.
Up to a temperature of 650 ºC and over a period of at least 30 min,
not more than 30 l/h (measured as air flow rate) must be able to flow
through or out of the fuel line.
Combustion equipment must be installed far enough away from com-
bustible materials and built-in furniture, or be shielded from such mate-
rial/furniture, so that at the rated output of the combustion equipment
no temperatures exceeding 85 ºC will occur. Alternatively, maintain a
distance of at least 40 cm.
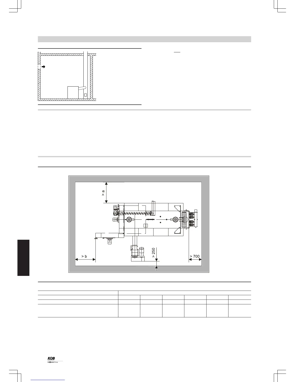
Minimum clearances
Dimensions and clearances
Trade name Pyrot grate combustion
Rated output kW 100 150 220 300 400 540
Part no.: 7423 656 7423 657 7423 658 7423 659 7423 660 7423 661
Dimensions
a mm 700 700 900 900 1100 1100
b mm 1920 1920 2200 2200 2440 2440
Design information
(cont.)
44
PYROT
6
5822 516 GB

Table of Contents