EasyManua.ls Logo

Microhard Systems BulletPlus - Bulletplus Mounting Bracket (Optional)

Microhard Systems BulletPlus
225 pages
Print Icon
To Next Page IconTo Next Page
To Next Page IconTo Next Page
To Previous Page IconTo Previous Page
To Previous Page IconTo Previous Page
Loading...
© Microhard Systems Inc. 19
3.0 Hardware Features
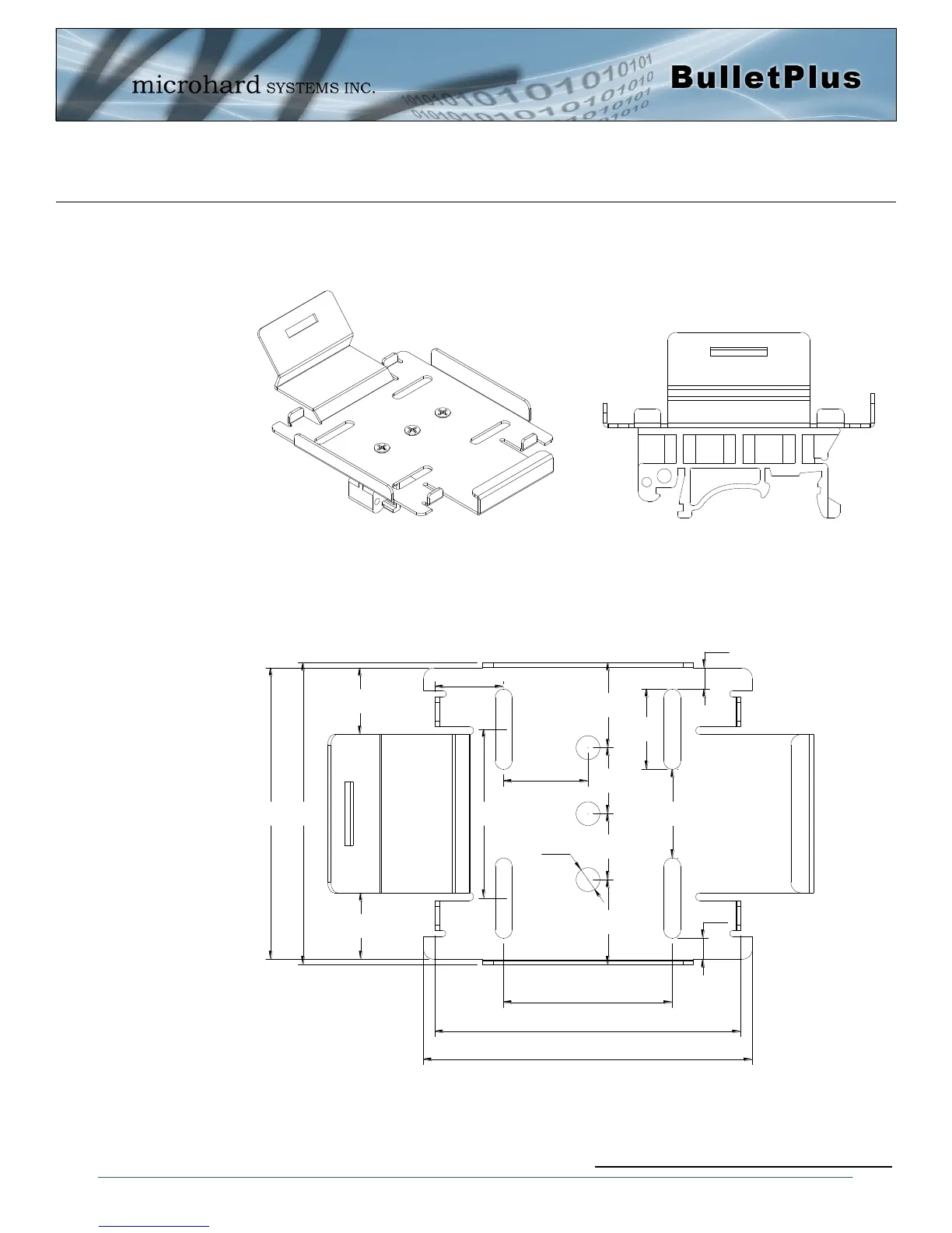
3.1.2 BulletPlus Mounting Bracket (Order Option)
Drawing 3-4: BulletPlus Top View Dimensions (Shown with removable TS35 DIN Rail Mount)
Drawing 3-5: BulletPlus Mounting Bracket Dimensions
Note: All dimension units: Millimeter
58.0
62.4
16.0
13.0
3.2
57.255.2
12.6
12.6
12.5
12.5
16.1
16.1
32.0
4.0
4.0
16.832.0
15.2

Table of Contents

Related product manuals