EasyManua.ls Logo

Mircom TX3-CX-1NP - NSL Relay Cabinet Mechanical Installation; Figure 40 NSL Relay Cabinet

Mircom TX3-CX-1NP
110 pages
Print Icon
To Next Page IconTo Next Page
To Next Page IconTo Next Page
To Previous Page IconTo Previous Page
To Previous Page IconTo Previous Page
Loading...
70 TX3 Telephone Access System Installation and Operation Manual Version 5.4
LT-969 Copyright 2019
NSL Relay Cabinet Installation and Wiring
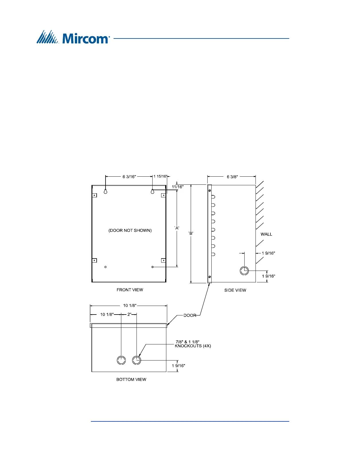
5.1 NSL Relay Cabinet Mechanical Installation
The NSL Relay cabinets contain the telephone switching equipment and are
typically mounted in the electrical/telephone room of a building.
NSL Relay cabinets are factory assembled in one of the following enclosure
sizes:
TX3-NSL-8M NSL Unit: 27 inch high enclosure
TX3-8EC NSL Expander: 13 15/16 inch high enclosure
TX3-16EC NSL Expander: 27 inch high enclosure
The TX3-8EC NSL Expander includes the 13 15/16 inch enclosure. The TX3-
NSL-8M Relay Cabinet includes the 27 inch enclosure. The TX3-16EC NSL
Expander includes the 27 inch enclosure. See figure 40 and Table 3.
Figure 40. NSL Relay Cabinet

Table of Contents

Other manuals for Mircom TX3-CX-1NP

Related product manuals