EasyManua.ls Logo

MUTOH ValueCut VC2-1300 - Wiring Diagram - Main Board

MUTOH ValueCut VC2-1300
68 pages
Print Icon
To Next Page IconTo Next Page
To Next Page IconTo Next Page
To Previous Page IconTo Previous Page
To Previous Page IconTo Previous Page
Loading...
MAINTENANCE MANUAL
VC2E-MM-00
20
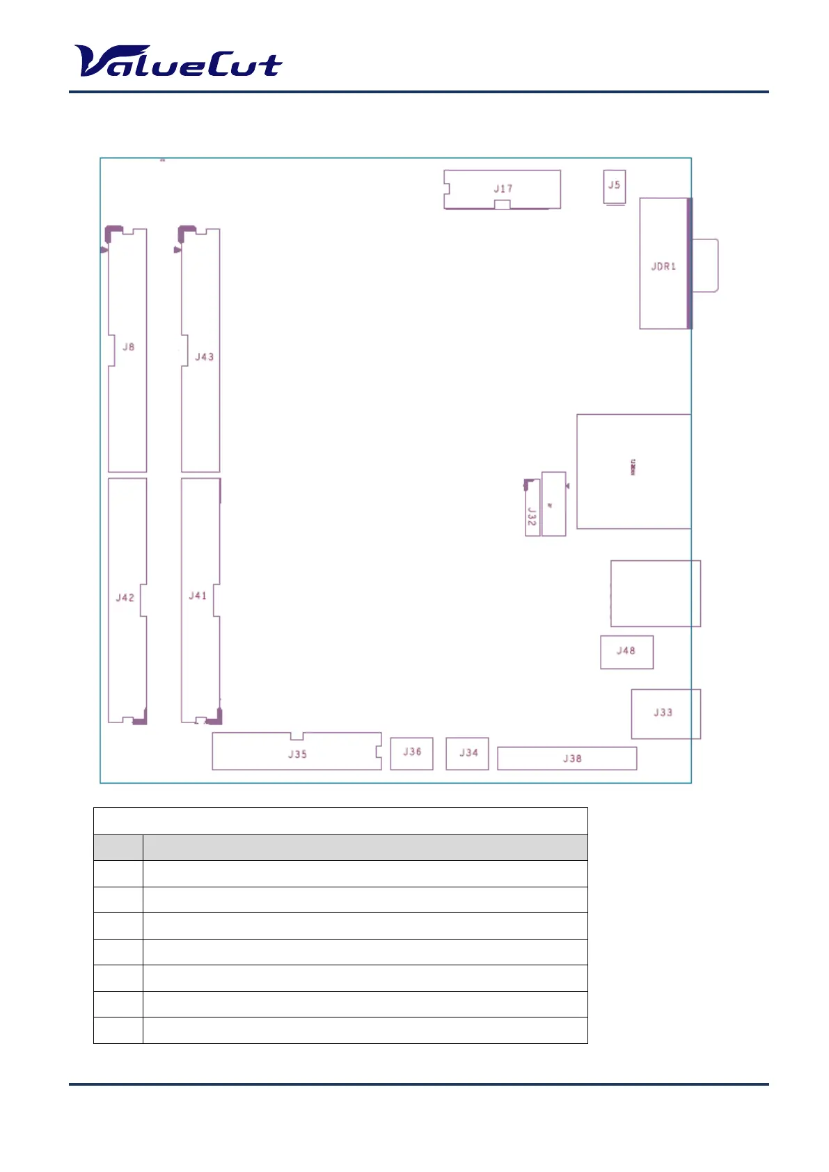
Wiring Diagram - Main Board
Main board
Port
Connected to
J5
Pinch Roller switch
J8
20x2 Ribbon Cable connect to Motor Drive Board J10
J26
External Ethernet Port
J32
Control Panel
J33
External USB Port
J41
20x2 Ribbon Cable connect to Motor Drive Board J19
JDR1
External RS-232C Port

Table of Contents

Related product manuals