EasyManua.ls Logo

noax N11 - Steel PC Mounting Options; Steel S12 and S15 Mounting

noax N11
120 pages
Print Icon
To Next Page IconTo Next Page
To Next Page IconTo Next Page
To Previous Page IconTo Previous Page
To Previous Page IconTo Previous Page
Loading...
User Manual N11
Installation
Industrial PC
www.noax.comPage 38 of 120 3085-US-2.4
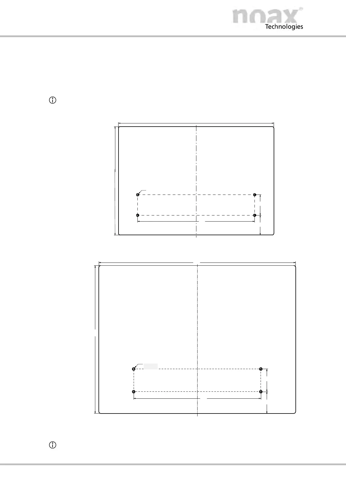
8.7
Industrial PC Steel - S12 and S15
This housing is mounted with the four threaded sleeves on its rear. These are closed
M5 insert nuts. For this reason, it is important to check that the screws used are of the
correct length.
The screws must not be screwed into the insert nuts by more than
0.31 inches / 8 mm.
48
274
46
364
254
4 x M 5
Fig. 22: Rear panel S12 (all dimensions in mm)
48
274
46
424
313
4 x M 5
Fig. 23: Rear panel S15 (all dimensions in mm)
In condition of delivery mounted screws only protect the threaded holes.
These screws are not suitable for mounting the device.

Table of Contents

Related product manuals