EasyManua.ls Logo

Notifier 1010 - Onnecting Nd Rogramming Lcd-80; A Laptop; Laptop to Lcd-80 Terminations

Notifier 1010
70 pages
Print Icon
To Next Page IconTo Next Page
To Next Page IconTo Next Page
To Previous Page IconTo Previous Page
To Previous Page IconTo Previous Page
Loading...
PAGE 20 1010/2020 INSTALLATION AND PROGRAMMING MANUAL
COPYRIGHT © 2000, NOTIFIER INERTIA PTY LTD
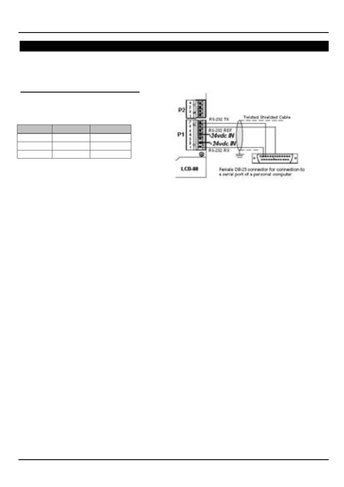
CONNECTING AND PROGRAMMING AN LCD-80 (ACS MODE) FROM A LAPTOP
The following section details the programming procedure for programming LCD-80 (Dual Mode)
Mimics. Note the terminations for a DB-9 or DB-25 pin connector.
LAPTOP TO LCD-80 TERMINATIONS
LCD-80 DB-9 Db-25
1 Rx 3 Tx 2 Tx
6 ref 5ref 7 ref
7 Tx 2 Rx 3 Rx
Programming outline:
Remove 24vdc power.
Connect the RS-232 interface to the Laptop as shown above.
Reconnect 24vdc to the LCD-80
Insert the PK-1 Programming Key onto the connector P6.
Program the LCD-80.
Exit Program mode by removing the Programming Key.
The Laptop must be in “terminal mode” and set with the following options:
2400 Baud.
7 Data bits.
1 Stop Bit.
Even Parity.
Xon/Xoff.
The LCD-80 now is ready for programming

Table of Contents

Related product manuals